Valutazione immobiliare indipendente, accurata e gratuita
Negozio in vendita a Volla (cod.656faae2)
Caasa non ha sufficienti informazioni per commentare il negozio in vendita a Volla - 656faae2.
Analisi immobiliare
I dati in posseso di Caasa per quest'immobile sono insufficienti, inaffidabili o contraddittori per proporre un'analisi attendibile.
Mercato immobiliare a Volla
Per quanto riguarda più in generale la città di Volla, sono presenti al momento più di trenta annunci per
negozi in vendita (meno dell'1% dell'intera provincia) .
Vedi altre informazioni direttamente su
Mercato-Immobiliare.info
NOVITÀ Il risultato che vedi dipende dai dati che siamo riusciti ad estrarre dall'annuncio: ottieni una stima più accuranta di questo immobile, inserendo dati più precisi.
N.B. L'Opinione di Caasa® è un servizio sperimentale realizzato tramite tecniche di Intelligenza Artificiale, fornito senza alcuna garanzia di correttezza e completezza. Leggi il disclaimer o segnalaci un problema.
IMMAGINI
IN SINTESI
DESCRIZIONE
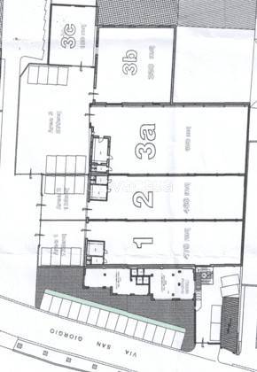
Volla (NA) – Soluzione unica per grandi attività Proponiamo immobile di grande rappresentanza, risultato dell’unione dei locali 3A + 3B + 3C, per una superficie complessiva di 1.250 mq interni e 570 mq di spazi esterni privati. Una soluzione rara sul mercato, perfetta per aziende strutturate che necessitano di metrature importanti, funzionalità e presenza in una zona centrale e altamente popolata. Gli spazi interni sono ampi, regolari e facilmente personalizzabili; l’area esterna privata rappresenta un valore aggiunto fondamentale per logistica, parcheggi, carico/scarico o utilizzi operativi. La posizione, circondata da parchi residenziali, scuole e servizi, rende l’immobile ideale sia per attività aperte al pubblico sia per funzioni direzionali e operative. Perfetto per: grandi supermercati o cash & carry poli sanitari o cliniche private palestre e centri sportivi sedi aziendali showroom di grandi dimensioni logistica urbana o attività miste Una struttura pensata per chi vuole dominare il mercato locale, non semplicemente esserci. Per ulteriori informazioni o fissare un sopralluogo contattaci

