Valutazione immobiliare indipendente, accurata e gratuita
Appartamento in affitto a Volla a 750 € mese (cod.656590ef)
Caasa non ha sufficienti informazioni per commentare l'appartamento in affitto a Volla - 656590ef.
Analisi immobiliare
I dati in posseso di Caasa per quest'immobile sono insufficienti, inaffidabili o contraddittori per proporre un'analisi attendibile.
Mercato immobiliare a Volla
Per quanto riguarda più in generale la città di Volla, sono presenti al momento più di dieci annunci per
appartamenti in affitto (meno dell'1% dell'intera provincia) .
NOVITÀ Il risultato che vedi dipende dai dati che siamo riusciti ad estrarre dall'annuncio: ottieni una stima più accuranta di questo immobile, inserendo dati più precisi.
N.B. L'Opinione di Caasa® è un servizio sperimentale realizzato tramite tecniche di Intelligenza Artificiale, fornito senza alcuna garanzia di correttezza e completezza. Leggi il disclaimer o segnalaci un problema.
IMMAGINI
IN SINTESI
PROPOSTO DA:
Affiliato Tecnocasa: TECNOVOLLA SRL
DESCRIZIONE
con posto auto con terrazza con cucina abitabile con cantina con cortile con giardino
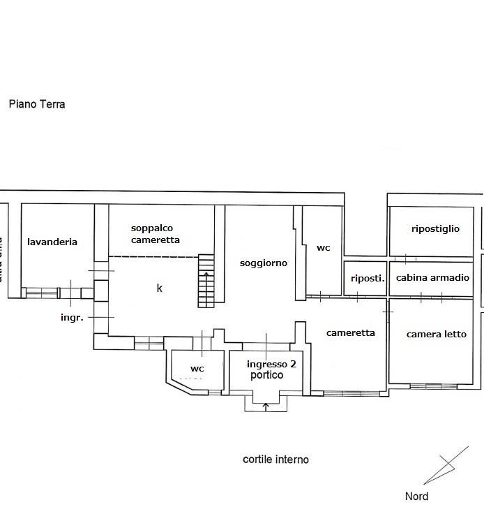
Proponiamo in affitto soluzione indipedente, in zona centrale di Volla, nei pressi delle Ginestre. Entrando vi è un luminoso salone con affaccio sul patio, proseguendo vi è la cucina abitabile e luminosa con un soppalco dove è possibile creare una piccola camera o un area relax, infine nella zona giorno vi troviamo un comodo bagno con box doccia e punto luce e inoltre una grande lavanderia. Nella zona notte vi sono due camere da letto ognuna con finestra, una grande cabina armadio e un ripostiglio, inoltre vi è un secondo bagno con vasca e punto luce. E' possibile fittare posto auto o box auto. La soluzione è l'ideale per chi cerca tranquillità e comfort pur abitando in zona centrale. Offriamo valutazioni gratuite e consulenza mutuo gratuita per rendere sempre più sereno e tranquillo l'acquisto della vostra nuova casa Per visionare la soluzione e per appuntamenti telefonare al 08118470990 tutti i giorni previa disponibilit

