Valutazione immobiliare indipendente, accurata e gratuita
Locale commerciale in affitto a San Giuseppe Vesuviano a 6.500 € mese (cod.65419c83)
Caasa non ha sufficienti informazioni per commentare il locale commerciale a San Giuseppe Vesuviano - 65419c83.
Analisi immobiliare
I dati in posseso di Caasa per quest'immobile sono insufficienti, inaffidabili o contraddittori per proporre un'analisi attendibile.
Mercato immobiliare a San Giuseppe Vesuviano
Per quanto riguarda più in generale la città di San Giuseppe Vesuviano, sono presenti al momento più di venti annunci per
locali commerciali in affitto (meno dell'1% dell'intera provincia) .
NOVITÀ Il risultato che vedi dipende dai dati che siamo riusciti ad estrarre dall'annuncio: ottieni una stima più accuranta di questo immobile, inserendo dati più precisi.
N.B. L'Opinione di Caasa® è un servizio sperimentale realizzato tramite tecniche di Intelligenza Artificiale, fornito senza alcuna garanzia di correttezza e completezza. Leggi il disclaimer o segnalaci un problema.
IMMAGINI
IN SINTESI
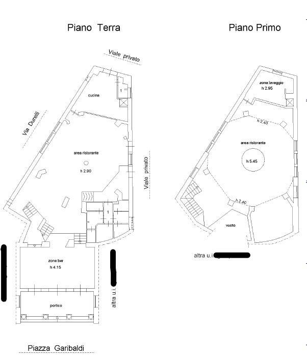
DESCRIZIONE
di recente ristrutturazione di recente ristrutturazione da ristrutturare edificio storico
Da Privato. Locale commerciale di circa 500 mq utilizzato come ristorante da quasi 30 anni situato in un edificio storico di pregio del 1926 nella Piazza principale di San Giuseppe Vesuviano a pochi passi dal Santuario. L'immobile in ottime condizioni sarà disponibile alla locazione dal secondo semestre 2026. Il canone di locazione si aggira intorno ai 13 euro mq ben al disotto dei valori di zona che si aggirano fra i 25/30 euro mq


