Valutazione immobiliare indipendente, accurata e gratuita
Appartamento in vendita a Portici in zona Bellavista a 580.000 € (cod.651ed73e)
Caasa non ha sufficienti informazioni per commentare l'appartamento a Portici in zona Bellavista - 651ed73e.
Analisi immobiliare
I dati in posseso di Caasa per quest'immobile sono insufficienti, inaffidabili o contraddittori per proporre un'analisi attendibile.
Mercato immobiliare a Portici
Per quanto riguarda più in generale la città di Portici, sono presenti al momento quasi 500 annunci per
appartamenti in vendita (meno del 5% dell'intera provincia)
e il maggior numero di annunci per questa tipologia sono relativi alla zona di Libertà, mentre la zona di Bellavista risulta molto meno attiva considerando il numero di annunci presenti.
La richiesta media nella zona dove sorge l'appartamento (Bellavista) è pari a
2.495 €/m² che la rende la più economica della città .
Possiamo inoltre considerare che in tutta la città negli ultimi 6 mesi, i prezzi per appartamenti in vendita sono
sostanzialmente stabili (+1,23%).
NOVITÀ Il risultato che vedi dipende dai dati che siamo riusciti ad estrarre dall'annuncio: ottieni una stima più accuranta di questo immobile, inserendo dati più precisi.
N.B. L'Opinione di Caasa® è un servizio sperimentale realizzato tramite tecniche di Intelligenza Artificiale, fornito senza alcuna garanzia di correttezza e completezza. Leggi il disclaimer o segnalaci un problema.
IMMAGINI
IN SINTESI
PROPOSTO DA:
DOGI SERVIZI IMMOBILIARI DI GIULIA D'ARDIA
VIA LIBERTA', 218 BIS, Portici (NA)
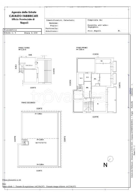
DESCRIZIONE
con terrazza con posto auto con giardino con termocondizionamento
Portici, Bellavista, Via Zuppetta, elegante dimora in villa con giardino privato, in una delle zone più esclusive e riservate di Portici, all’interno di un viale privato immerso nel verde, proponiamo in vendita una prestigiosa residenza indipendente in villa, disposta su due livelli, circondata da un incantevole giardino privato di circa 1000 mq e dotata di comodi posti auto. L’abitazione, caratterizzata da ambienti ampi e luminosi, si compone di otto vani con doppi servizi, ed è impreziosita da un terrazzo a livello. Al piano terra troviamo un elegante ingresso con ampio disimpegno, una camera e una imponente scala che conduce al piano superiore, la zona notte è composta da tre camere da letto, di cui una con cabina armadio, un ulteriore disimpegno, vano lavanderia e due bagni finemente rifiniti, la zona giorno, accoglie un'ampia cucina living con accesso diretto al terrazzo, perfetto per momenti di convivialità all’aperto. La proprietà gode di una tripla esposizione, che assicura una piacevole luminosità durante tutto l’arco della giornata. Il riscaldamento è autonomo, e le condizioni generali dell'immobile sono ottime, sia negli interni che nelle parti esterne. Una soluzione abitativa di rara bellezza, immersa nella quiete e nel verde, ideale per chi desidera vivere in un contesto signorile, riservato e al tempo stesso ben collegato. Classe energetica: G

