Valutazione immobiliare indipendente, accurata e gratuita
L'Opinione di Caasa® per l'appartamento in vendita a Mugnano di Napoli a 470.000 € (cod.65727474)
Secondo Caasa, per l'appartamento in vendita a Mugnano di Napoli, la richiesta di 470.000 € è significativamente vantaggiosa rispetto agli annunci simili.
Analisi immobiliare
L'appartamento, situato nella zona OMI C1, è proposto in vendita a
470.000 € per una
superficie commerciale di
234 m² e quindi ad un prezzo per metro quadrato pari a
2008 €/m²
.
Questo valore
è significativamente più basso di quello stimato da Caasa per immobili in vendita simili per tipologia, caratteristiche, classe energetica e zona, che è compreso tra
2.389 €/m² e
2.583 €/m².
Considerata la posizione dell'appartamento si sono utilizzati in raffronto i valori medi nelle zone limitrofe . Ad affinare la stima ha contribuito anche la classe energetica (A) oltre alla conoscenza dello stato dell'immobile (di recente ristrutturazione) e di alcune caratteristiche significative come la presenza dell'ascensore. Per queste ragioni è possibile ottenere un intervallo di valori accettabili per l'offerta relativamente limitato.
Mercato immobiliare a Mugnano di Napoli
Per quanto riguarda più in generale la città di Mugnano di Napoli, sono presenti al momento più di 300 annunci per
appartamenti in vendita (meno del 5% dell'intera provincia) .
Per quanto riguarda la dinamica dei prezzi, negli ultimi 6 mesi i prezzi medi in tutta la città per appartamenti in vendita sono
in debole diminuzione (-1,55%).
NOVITÀ Il risultato che vedi dipende dai dati che siamo riusciti ad estrarre dall'annuncio: ottieni una stima più accuranta di questo immobile, inserendo dati più precisi.
N.B. L'Opinione di Caasa® è un servizio sperimentale realizzato tramite tecniche di Intelligenza Artificiale, fornito senza alcuna garanzia di correttezza e completezza. Leggi il disclaimer o segnalaci un problema.
IMMAGINI
IN SINTESI
PROPOSTO DA:
2A IMMOBILIARE
DESCRIZIONE
di recente ristrutturazione con terrazza con balcone con cucina abitabile con giardino con ascensore di recente ristrutturazione con caminetto
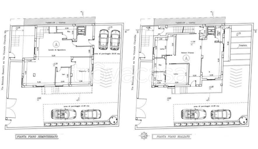
Proponiamo in vendita una soluzione semi-indipendente completamente ristrutturata, disposta su due livelli: il piano rialzato adibito ad abitazione e il piano terra adibito a tavernetta, con possibilità di creare due unità abitative indipendenti, ideale anche per due famiglie. Attualmente sono in corso le rifiniture con materiali di prestigio, infissi in PVC con doppio vetro, impianto d’allarme e videocamere già predisposti, per garantire sicurezza e comfort. L’immobile è dotato di comodo ascensore interno che collega la tavernetta al piano superiore e al terrazzo di copertura di 117 mq, già completo di pannelli fotovoltaici, perfetto come solarium o area relax. La proprietà dispone di circa 150 mq di spazio esterno privato con possibilità di parcheggiare fino a 4 auto. Distribuzione interna: Piano terra / tavernetta (117 mq): ampia zona soggiorno-cucina con camino, 2 camere e bagno, con possibilità di trasformarla in un appartamento indipendente. Piano rialzato (117 mq): salone doppio, cucina abitabile, camera con cabina armadio e bagno privato, seconda camera con bagno in camera, ulteriore bagno/lavanderia. Doppia esposizione con balconi e terrazzati che garantiscono luminosità in tutti gli ambienti. Soluzione ideale per chi cerca ampi spazi interni ed esterni, indipendenza, sicurezza e comfort. Visionabile previo appuntamento telefonico, chiamando al numero fisso 08118634254 o inviando un messaggio (solo WhatsApp) al 3519241017. Seguiteci anche su Instagram, cliccando “Mi piace” sulla pagina @due.a_immobiliare. Lo studio di consulenza Due A offre consulenze gratuite per mutui o finanziamenti, con un nostro collaboratore pronto a trovare la rata su misura per voi. La DUE-A è partner di Verisure, leader negli impianti d’allarme per casa e business: tutte le nostre sedi sono Verisure Point, perché affidarsi a noi è e sarà sempre una SICUREZZA

