Valutazione immobiliare indipendente, accurata e gratuita
Casa indipendente a Giugliano in Campania in zona Varcaturo a 550.000 € (cod.64f9171f)
Caasa non ha sufficienti informazioni per commentare la casa indipendente a Giugliano in Campania Varcaturo - 64f9171f.
Analisi immobiliare
I dati in posseso di Caasa per quest'immobile sono insufficienti, inaffidabili o contraddittori per proporre un'analisi attendibile.
Mercato immobiliare a Giugliano in Campania
Per quanto riguarda più in generale la città di Giugliano in Campania, sono presenti al momento oltre 500 annunci per
case indipendenti in vendita (meno del 10% dell'intera provincia)
e il maggior numero di annunci per questa tipologia sono relativi proprio alla zona di Varcaturo.
La richiesta media nella zona dove sorge la casa indipendente (Varcaturo) è pari a
1.655 €/m², molto vicina ai valori della zona Casacelle che sono i più alti della città .
La dinamica dei prezzi in tutta la città mostra che negli ultimi 6 mesi, i prezzi per case indipendenti in vendita sono
in sostanziale aumento (+5,71%).
NOVITÀ Il risultato che vedi dipende dai dati che siamo riusciti ad estrarre dall'annuncio: ottieni una stima più accuranta di questo immobile, inserendo dati più precisi.
N.B. L'Opinione di Caasa® è un servizio sperimentale realizzato tramite tecniche di Intelligenza Artificiale, fornito senza alcuna garanzia di correttezza e completezza. Leggi il disclaimer o segnalaci un problema.
IMMAGINI
IN SINTESI
PROPOSTO DA:
Invest Immobiliare
DESCRIZIONE
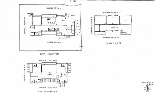
M4 Varcaturo in via Ripuaria all'interno del parco mare casa in contesto residenziale esclusivo, proponiamo in vendita soluzione indipendente di circa 600mq originariamente composta da due ville bifamiliari disposte su tre livelli, con spazio esterno di circa 500mq . Attualmente l’immobile è locato con regolare contratto, garantendo una rendita mensile di € 1.500. Disponibilità libera a partire dal 2029. Ottima l’esposizione solare e la posizione strategica, a pochi passi dai principali snodi viari e dai servizi di prima necessità. Soluzione ideale per chi desidera coniugare comfort, privacy e investimento sicuro . Se quest'immobile non soddisfa le vostre esigenze contattateci e lasciate una richiesta presso il nostro ufficio permettendoci di chiamarvi ogni qualvolta acquisiamo un appartamento che potenzialmente potrebbe interessarvi. La INVEST IMMOBILIARE s. r. l. Servizi immobiliari & finanziari, è una società presente dal 1989 sul mercato immobiliare, siamo presenti sul territorio della provincia di Napoli (Licola, Varcaturo, Lago Patria, Monteruscello, Giugliano in Campania, Aversa, Qualiano, Villaricca, Calvizzano, Quarto, Marano di Napoli, Arco Felice, Pozzuoli, Agnano, Baia, Fusaro, Bacoli, Monte di Procida) occupandoci della vendita e locazione di unità immobiliari


