Valutazione immobiliare indipendente, accurata e gratuita
Appartamento in vendita a Casoria in zona Centro Storico a 145.000 € (cod.64fd481e)
Caasa non ha sufficienti informazioni per commentare l'appartamento a Casoria in zona Centro Storico - 64fd481e.
Analisi immobiliare
I dati in posseso di Caasa per quest'immobile sono insufficienti, inaffidabili o contraddittori per proporre un'analisi attendibile.
Mercato immobiliare a Casoria
Per quanto riguarda più in generale la città di Casoria, sono presenti al momento quasi 500 annunci per
appartamenti in vendita (meno del 5% dell'intera provincia)
e il maggior numero di annunci per questa tipologia sono relativi alla zona di Arpino, ma anche la zona di Centro Storico è molto attiva dal punto di vista immobiliare.
La richiesta media nella zona dove sorge l'appartamento (Centro Storico pressi Via Cesare Battisti) è pari a
1.765 €/m² e ne fa la più pregiata della città .
Possiamo inoltre considerare che in tutta la città negli ultimi 6 mesi, i prezzi per appartamenti in vendita sono
in forte aumento (+11,97%).
NOVITÀ Il risultato che vedi dipende dai dati che siamo riusciti ad estrarre dall'annuncio: ottieni una stima più accuranta di questo immobile, inserendo dati più precisi.
N.B. L'Opinione di Caasa® è un servizio sperimentale realizzato tramite tecniche di Intelligenza Artificiale, fornito senza alcuna garanzia di correttezza e completezza. Leggi il disclaimer o segnalaci un problema.
IMMAGINI
IN SINTESI
DESCRIZIONE
con terrazza con posto auto con cucina abitabile
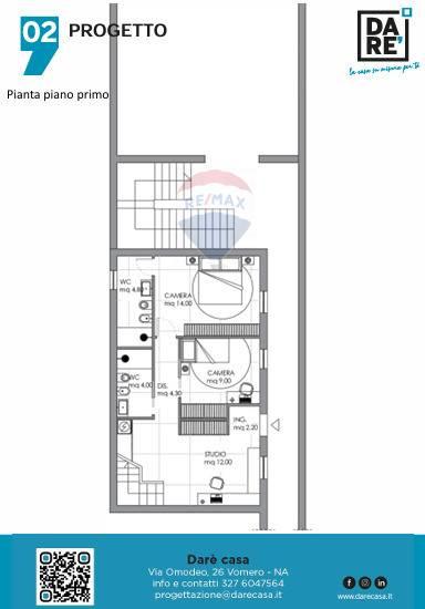
In vendita – Via Cesare Battisti Casoria – 145 m² su due livelli Nel cuore di Casoria, in una zona centrale e ben servita, proponiamo in vendita un ampio appartamento di circa 145 m², distribuito su due livelli, molto luminoso e con grandi potenzialità. L'immobile è composto da due camere da letto, due bagni, uno studio, una cucina abitabile con accesso a un piccolo terrazzo, oltre a un posto auto riservato. La soluzione è ideale per chi cerca una casa da personalizzare, con spazi comodi e ben distribuiti, perfetti per una famiglia o per chi desidera ambienti separati per vivere e lavorare. L'appartamento, infatti, si presta a diventare la casa dei propri sogni, con ambienti funzionali e facilmente modulabili. La posizione è strategica: vicina a scuole, supermercati, attività commerciali, servizi pubblici e ben collegata ai principali snodi viari della città. Inoltre, non ci sono lavori condominiali deliberati, il che la rende una scelta ancora più conveniente. Contattaci per maggiori informazioni o per fissare una visita. Una casa con così tanto potenziale, in questa posizione, è un'occasione da non perdere


