Valutazione immobiliare indipendente, accurata e gratuita
Negozio in affitto a Casalnuovo di Napoli a 400 € mese (cod.658a6245)
Caasa non ha sufficienti informazioni per commentare il negozio in affitto a Casalnuovo di Napoli - 658a6245.
Analisi immobiliare
I dati in posseso di Caasa per quest'immobile sono insufficienti, inaffidabili o contraddittori per proporre un'analisi attendibile.
Mercato immobiliare a Casalnuovo di Napoli
Per quanto riguarda più in generale la città di Casalnuovo di Napoli, sono presenti al momento più di cento annunci per
negozi in affitto (meno del 5% dell'intera provincia)
e il maggior numero di annunci per questa tipologia sono relativi alla zona di Tavernanova.
Vedi altre informazioni direttamente su
Mercato-Immobiliare.info
NOVITÀ Il risultato che vedi dipende dai dati che siamo riusciti ad estrarre dall'annuncio: ottieni una stima più accuranta di questo immobile, inserendo dati più precisi.
N.B. L'Opinione di Caasa® è un servizio sperimentale realizzato tramite tecniche di Intelligenza Artificiale, fornito senza alcuna garanzia di correttezza e completezza. Leggi il disclaimer o segnalaci un problema.
IMMAGINI
IN SINTESI
PROPOSTO DA:
ZA-HOUSE STUDIO IMMOBILIARE
DESCRIZIONE
di nuova costruzione con posto auto di nuova costruzione con cortile
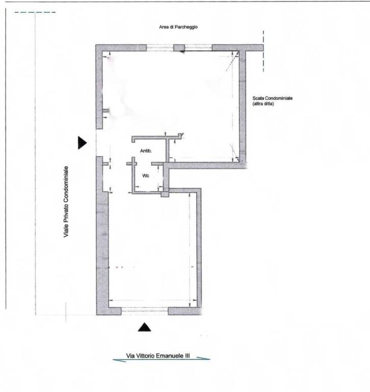
In Via Vittorio Emanuele III a Casalnuovo di Napoli, si propone in locazione: Locale commerciale di circa 58 mq interni composto da 2 vani, bagno e antibagno. Il Locale dispone di ingresso-vetrina su strada e altre aperture interne. Comodo il secondo ingresso dal cortile condominiale. L'immobile è posto in buona posizione commerciale su strada ad alto flusso veicolare e al fianco di attività già avviata. Inoltre si trova vicino a "PALAZZO LANCELLOTTI” che ospita all'interno alcuni uffici del comune di Casalnuovo di Napoli, e che dispone anche di parcheggio gratuito nelle immediate vicinanze . Richiesta economica: € 400\mensili escluse utenze e spese condominiali. Possibilità di locare posto auto scoperto interno corte condominiale con trattativa riservata. Disponibilità GIUGNO 2026

