Valutazione immobiliare indipendente, accurata e gratuita
Appartamento in vendita a Sessa Aurunca in zona Rongolise a 105.000 € (cod.64f9df4e)
Caasa non ha sufficienti informazioni per commentare l'appartamento a Sessa Aurunca in zona Rongolise - 64f9df4e.
Analisi immobiliare
I dati in posseso di Caasa per quest'immobile sono insufficienti, inaffidabili o contraddittori per proporre un'analisi attendibile.
Mercato immobiliare a Sessa Aurunca
Per quanto riguarda più in generale la città di Sessa Aurunca, sono presenti al momento più di 300 annunci per
appartamenti in vendita (meno del 5% dell'intera provincia)
e il maggior numero di annunci per questa tipologia sono relativi alla zona di San Carlo, mentre la zona di Rongolise risulta molto meno attiva considerando il numero di annunci presenti.
Possiamo inoltre considerare che in tutta la città negli ultimi 6 mesi, i prezzi per appartamenti in vendita sono
in forte aumento (+18,93%).
NOVITÀ Il risultato che vedi dipende dai dati che siamo riusciti ad estrarre dall'annuncio: ottieni una stima più accuranta di questo immobile, inserendo dati più precisi.
N.B. L'Opinione di Caasa® è un servizio sperimentale realizzato tramite tecniche di Intelligenza Artificiale, fornito senza alcuna garanzia di correttezza e completezza. Leggi il disclaimer o segnalaci un problema.
IMMAGINI
IN SINTESI
DESCRIZIONE
con terrazza
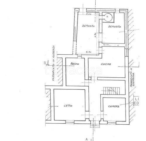
Sessa Aurunca, fraz. Rongolise: Ampio appartamento disposto su due livelli con annessa piccola corte. Il piano terra e composto da cucina, bagno e quattro camere. Il primo piano si compone di cucina, bagno, soggiorno/pranzo, tre camere e terrazzo a livello. Annessa piccola corte di MQ. 173. La superficie indicata e quella che risulta dalla visura catastale rilasciata dal competente ufficio. Per informazioni ed appuntamenti contattare il rag. Carmine De Masi - agente immobiliare - con studio in Sessa Aurunca, Via XXI Luglio, n. 25

