Valutazione immobiliare indipendente, accurata e gratuita
L'Opinione di Caasa® per l'appartamento in vendita a San Prisco a 300.000 € (cod.64dc1156)
Secondo Caasa, per l'appartamento in vendita a San Prisco, la richiesta di 300.000 € è significativamente svantaggiosa rispetto agli annunci simili.
Analisi immobiliare
L'appartamento, situato nella zona OMI B5, è proposto in vendita (da Affiliato Tecnocasa: ALMA PROJECT SRL) a
300.000 € per una
superficie commerciale di
113 m² e quindi ad un prezzo per metro quadrato pari a
2654 €/m²
.
Questo prezzo
è meno vantaggioso di quello stimato da Caasa per immobili in vendita simili per tipologia, caratteristiche, classe energetica e zona, che è compreso tra
2.210 €/m² e
2.374 €/m².
Data la posizione dell'appartamento si sono utilizzati in raffronto i valori medi nelle zone limitrofe . Ad affinare la stima ha contribuito anche la classe energetica (A+) oltre alla conoscenza dello stato dell'immobile (di nuova costruzione) e di alcune caratteristiche significative come il posto auto. Per i motivi esposti è possibile ottenere un intervallo di valori accettabili per l'offerta relativamente limitato.
Mercato immobiliare a San Prisco
Per quanto riguarda più in generale il comune di San Prisco, sono presenti al momento più di cento annunci per
appartamenti in vendita (meno del 5% dell'intera provincia) .
Possiamo inoltre considerare che in tutto il comune negli ultimi 6 mesi, i prezzi per appartamenti in vendita sono
in leggero aumento (+2,74%).
NOVITÀ Il risultato che vedi dipende dai dati che siamo riusciti ad estrarre dall'annuncio: ottieni una stima più accuranta di questo immobile, inserendo dati più precisi.
N.B. L'Opinione di Caasa® è un servizio sperimentale realizzato tramite tecniche di Intelligenza Artificiale, fornito senza alcuna garanzia di correttezza e completezza. Leggi il disclaimer o segnalaci un problema.
IMMAGINI
IN SINTESI
PROPOSTO DA:
Affiliato Tecnocasa: ALMA PROJECT SRL
VIA NAZIONALE APPIA , 145, Casagiove (CE)
DESCRIZIONE
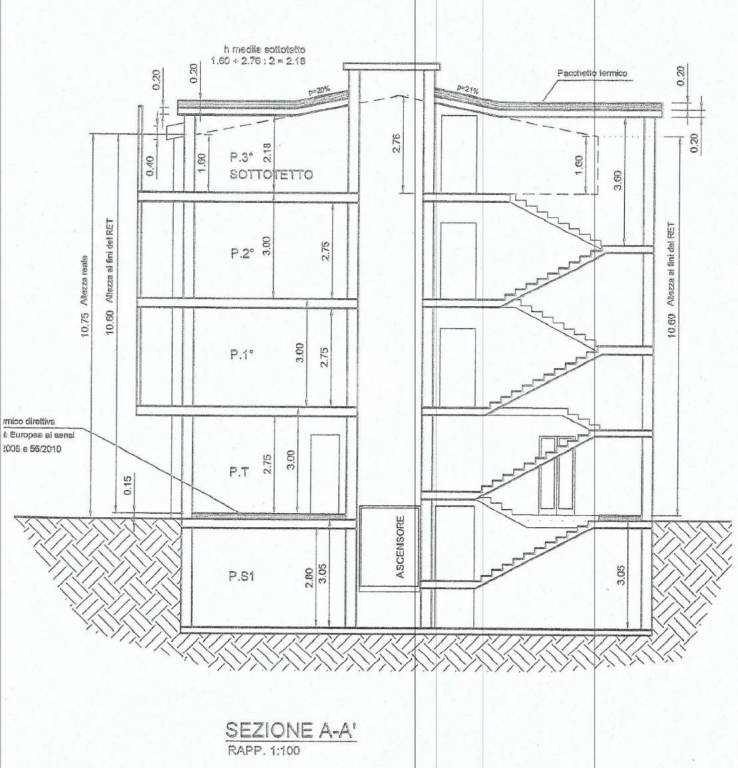
di nuova costruzione con posto auto con terrazza con balcone di nuova costruzione con cucina abitabile
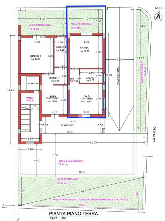
SAN PRISCO - VIA PARITO In contesto residenziale tranquillo e servito, a pochi passi da Via Agostino Stellato, proponiamo in vendita appartamenti in costruzione con consegna prevista a ottobre 2026. Il condominio sarà composto da sole 5 unità abitative, garantendo così un ambiente esclusivo e riservato. Le unità saranno distribuite come segue: - Due appartamenti al piano terra ad uso ufficio - Un appartamento al primo piano - Un appartamento al secondo piano - Un sottotetto - Box auto al piano interrato L'appartamento che proponiamo si trova al primo piano e si estende su una superficie di circa 100 mq. La sua composizione è la seguente: - Soggiorno ampio e luminoso - Cucina abitabile - Tre camere da letto spaziose - Due bagni - Terrazzo e due balconi - Box auto privato Il cantiere sarà realizzato utilizzando materiali di pregio e sarà costruito con criteri moderni di ultima generazione, garantendo così la massima qualità, sicurezza e comfort. La consegna è prevista entro un anno, offrendo così l'opportunità di acquistare una proprietà nuova con la possibilità di personalizzare alcuni dettagli


