Valutazione immobiliare indipendente, accurata e gratuita
L'Opinione di Caasa® per l'appartamento in vendita a San Marcellino a 185.000 € (cod.65694fb2)
Secondo Caasa, per l'appartamento in vendita a San Marcellino, la richiesta di 185.000 € è leggermente vantaggiosa rispetto agli annunci simili.
Analisi immobiliare
L'appartamento, situato nella zona OMI D2, è proposto in vendita a
185.000 € per una
superficie commerciale di
126 m² e quindi ad un prezzo per metro quadrato pari a
1468 €/m²
.
Questo prezzo
è leggeremente più conveniente di quello stimato da Caasa per immobili in vendita simili per tipologia, caratteristiche, classe energetica e zona, che è compreso tra
1.514 €/m² e
1.651 €/m².
Data la posizione dell'appartamento si sono utilizzati in raffronto i valori medi nelle zone limitrofe . Ad affinare la stima ha contribuito anche la classe energetica (E) oltre alla conoscenza dello stato dell'immobile (di nuova costruzione che però è in parte contraddittorio con la classe energetica) e di alcune caratteristiche significative come il garage. Per i motivi esposti è possibile ottenere un intervallo di valori accettabili per l'offerta relativamente limitato.
Mercato immobiliare a San Marcellino
Per quanto riguarda più in generale il comune di San Marcellino, sono presenti al momento circa cento annunci per
appartamenti in vendita (meno del 5% dell'intera provincia) .
Possiamo inoltre considerare che in tutto il comune negli ultimi 6 mesi, i prezzi per appartamenti in vendita sono
in deciso aumento (+8,95%).
NOVITÀ Il risultato che vedi dipende dai dati che siamo riusciti ad estrarre dall'annuncio: ottieni una stima più accuranta di questo immobile, inserendo dati più precisi.
N.B. L'Opinione di Caasa® è un servizio sperimentale realizzato tramite tecniche di Intelligenza Artificiale, fornito senza alcuna garanzia di correttezza e completezza. Leggi il disclaimer o segnalaci un problema.
IMMAGINI
IN SINTESI
PROPOSTO DA:
CIMACASA Real Estate Agency
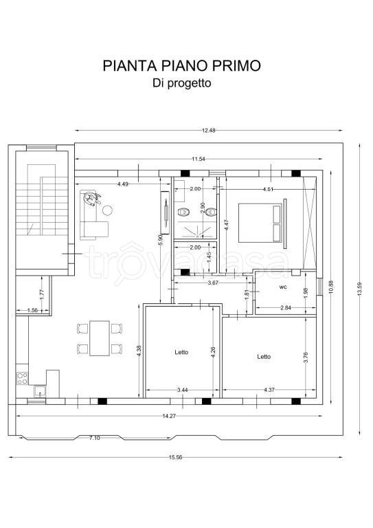
DESCRIZIONE
di nuova costruzione con posto auto con terrazza di nuova costruzione con garage con giardino
APPARTAMENTI AMPIA QUADRATURA DI NUOVA COSTRUZIONE CON GIARDINO/ TERRAZZO E POSTI AUTO DI PROPRIETA' ESCLUSIVA Nel Comune di San Marcellino (Ce) a soli quattro minuti dal Corso Europa, CIMACASA Real Estate Agency propone in vendita appartamenti di nuova costruzione di circa 100 mq interni, con ampie balconate perimetrali su tre lati, con terrazzo/giardino a livello, due posti auto di proprietà esclusiva inclusi nel prezzo, con possibilità di acquistare posti auto extra. Inserito in piccolo ed elegante contesto condominio di sole tre unità abitative, gli appartamenti si compongono di ampio soggiorno living, tre camere da letto e doppi servizi, cabine armadio e/o vano lavanderia. Le soluzioni è in corso di costruzione pertanto in questa fase sarà possibile personalizzare gli spazi secondo le proprie esigenze, con disponibilità di un ampio capitolato per la scelta delle rifiniture interne. L'appartamento sarà consegnato completo con predisposizione d'impianto antifurto e condizionamento, infissi in doppio vetro camera e rifiniture di ottima qualità. Consegna entro in 18 mesi. Per maggiori informazioni non esitate a contattarci

