Valutazione immobiliare indipendente, accurata e gratuita
L'Opinione di Caasa® per l'appartamento in vendita a San Marcellino a 185.000 € (cod.65654bc1)
Secondo Caasa, per l'appartamento in vendita a San Marcellino, la richiesta di 185.000 € è leggermente vantaggiosa rispetto agli annunci simili.
Analisi immobiliare
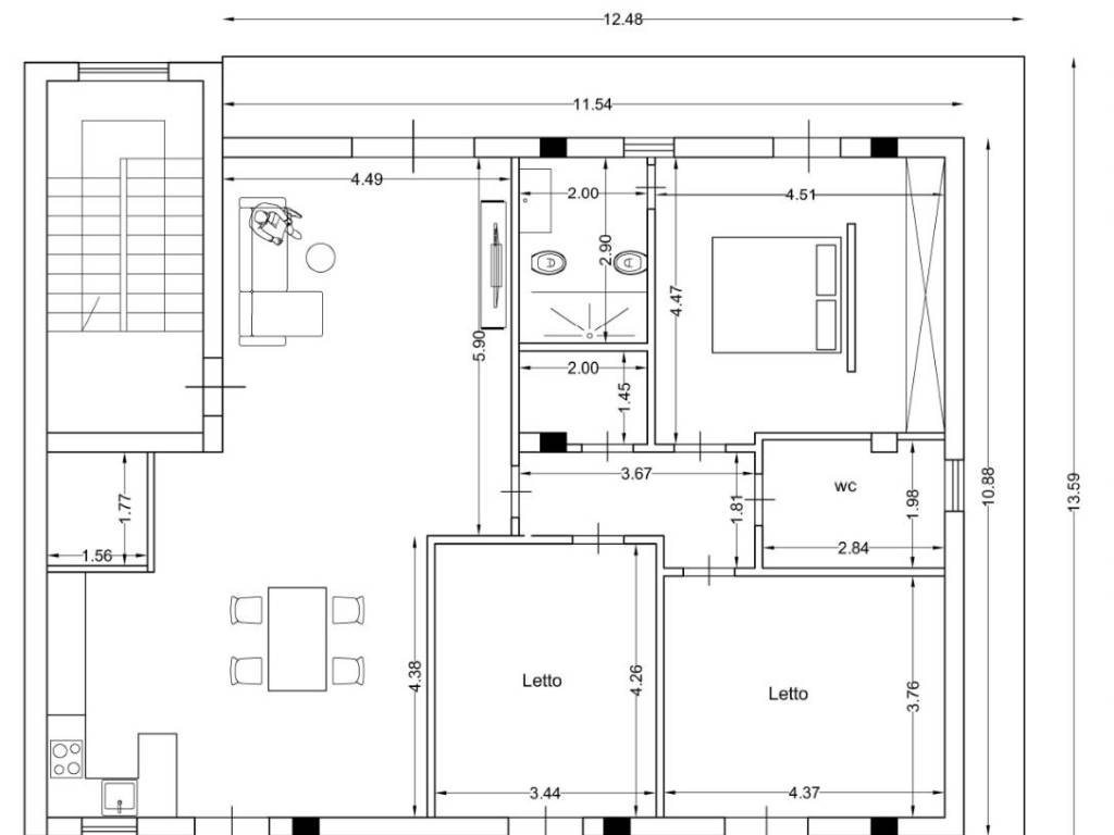
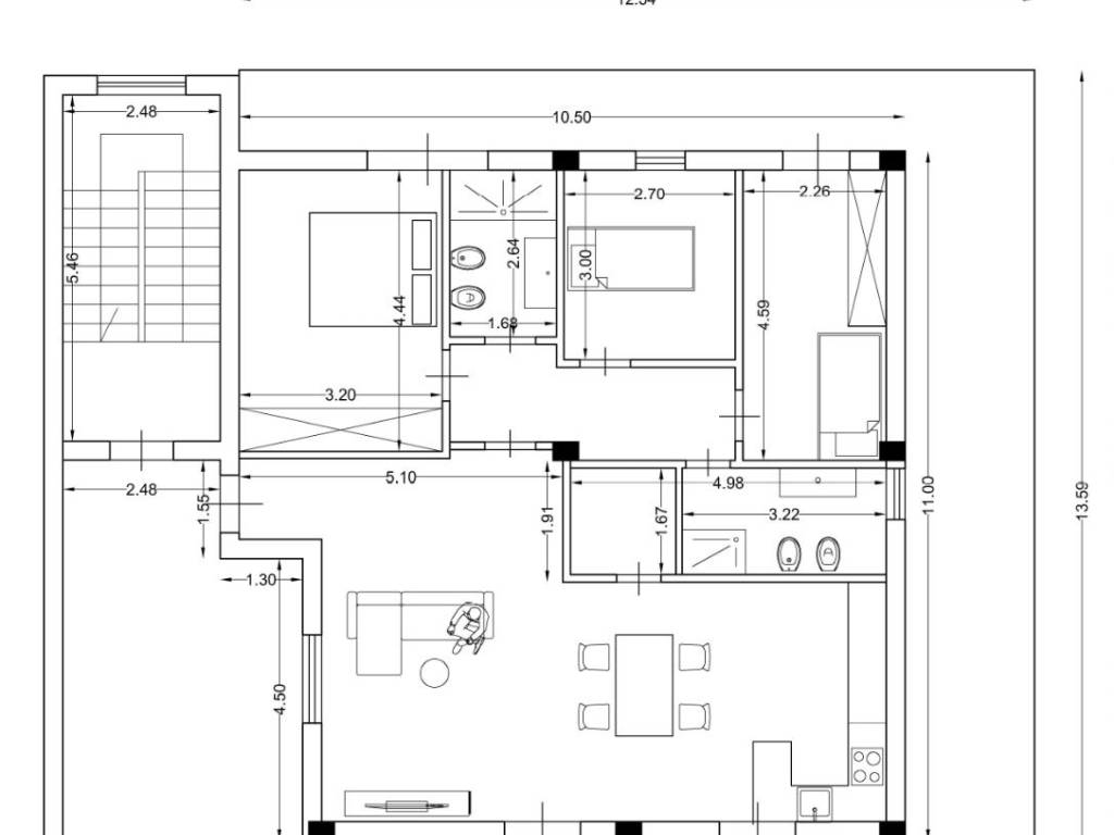
L'appartamento, situato nella zona OMI D2, è proposto in vendita a
185.000 € per una
superficie commerciale di
126 m² e quindi ad un prezzo per metro quadrato pari a
1468 €/m²
.
Tale prezzo
è di poco inferiore a quello stimato da Caasa per immobili in vendita simili per tipologia e caratteristiche, che è compreso tra
1.510 €/m² e
1.636 €/m².
E' stato possibile utilizzare in raffronto i soli valori medi cittadini. Caasa non dispone infatti di informazioni di dettaglio e di adeguata affidabilità sulle singole zone immobiliari nelle vicinanze dell'immobile e non è stata in grado di determinare in modo affidabile la classe energetica. Ad affinare la stima hanno contribuito però anche lo stato dell'immobile (di nuova costruzione) e la presenza di alcune caratteristiche significative come il posto auto. In virtù di queste considerazioni i valori considerati accettabili per l'offerta economica devono costituire un intervallo adeguatamente ampio.
Mercato immobiliare a San Marcellino
Per quanto riguarda più in generale il comune di San Marcellino, sono presenti al momento circa cento annunci per
appartamenti in vendita (meno del 5% dell'intera provincia) .
Relativamente alla dinamica dei prezzi, possiamo dire che negli ultimi 6 mesi i prezzi medi in tutto il comune per appartamenti in vendita sono
in debole diminuzione (-1,59%).
NOVITÀ Il risultato che vedi dipende dai dati che siamo riusciti ad estrarre dall'annuncio: ottieni una stima più accuranta di questo immobile, inserendo dati più precisi.
N.B. L'Opinione di Caasa® è un servizio sperimentale realizzato tramite tecniche di Intelligenza Artificiale, fornito senza alcuna garanzia di correttezza e completezza. Leggi il disclaimer o segnalaci un problema.
IMMAGINI
IN SINTESI
PROPOSTO DA:
CIMACASA Real Estate Agency
