Valutazione immobiliare indipendente, accurata e gratuita
L'Opinione di Caasa® per l'appartamento in vendita a Sant'Arpino a 295.000 € (cod.652a42fe)
Secondo Caasa, per l'appartamento in vendita a Sant'Arpino, la richiesta di 295.000 € è significativamente svantaggiosa rispetto agli annunci simili.
Analisi immobiliare
L'appartamento, situato nella zona OMI D1, è proposto in vendita (da Andromeda Immobiliare) a
295.000 € per una
superficie commerciale di
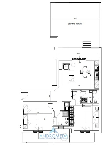
105 m² e quindi ad un prezzo per metro quadrato pari a
2809 €/m²
.
Questo prezzo
è meno vantaggioso di quello stimato da Caasa per immobili in vendita simili per tipologia e caratteristiche, presenti nella stessa zona, che è compreso tra
2.134 €/m² e
2.333 €/m².
Data la posizione dell'appartamento sono stati utilizzati come raffronto i valori medi nelle zone limitrofe . Caasa non è stata in grado di determinare la classe energetica, ma ad affinare la stima hanno contribuito però anche lo stato dell'immobile (di nuova costruzione) e la presenza di alcune caratteristiche significative come la presenza dell'ascensore o la disponibilità di una cantina. Per i motivi esposti l'intervallo dei valori possibili per l'offerta è relativamente ampio.
Mercato immobiliare a Sant'Arpino
Per quanto riguarda più in generale la città di Sant'Arpino, sono presenti al momento più di cento annunci per
appartamenti in vendita (meno del 5% dell'intera provincia) .
Possiamo inoltre considerare che in tutta la città negli ultimi 6 mesi, i prezzi per appartamenti in vendita sono
in sostanziale aumento (+5,62%).
NOVITÀ Il risultato che vedi dipende dai dati che siamo riusciti ad estrarre dall'annuncio: ottieni una stima più accuranta di questo immobile, inserendo dati più precisi.
N.B. L'Opinione di Caasa® è un servizio sperimentale realizzato tramite tecniche di Intelligenza Artificiale, fornito senza alcuna garanzia di correttezza e completezza. Leggi il disclaimer o segnalaci un problema.
IMMAGINI
IN SINTESI
PROPOSTO DA:
Andromeda Immobiliare
Via Lipari, 6, Casoria (NA)
Verificata da Caasa®
DESCRIZIONE
di nuova costruzione di nuova costruzione con giardino con cantina con termocondizionamento con ascensore
Caserta - Sant’Arpino - Proponiamo in vendita un appartamento di nuova costruzione di circa m² 105 , situato al piano terra di un moderno ed elegante parco residenziale dotato di ascensore . Il complesso, composto da sette fabbricati di cinque piani , è stato progettato per offrire comfort, sicurezza e qualità abitativa , in un contesto raffinato e funzionale . L’appartamento si compone di: ingresso , ampio salone living con cucina a vista , due camere da letto , di cui una con bagno privato, un ulteriore bagno di servizio e un ampio ripostiglio/lavanderia . Gli ambienti risultano luminosi e ben distribuiti , grazie all’ affaccio e al giardino di circa m² 40 , ideale per vivere piacevoli momenti all’aperto e godere di un’eccellente esposizione. La progettazione è stata studiata con attenzione per garantire la massima vivibilità quotidiana . Le finiture sono di alto livello e includono: infissi in triplo vetro camera per un eccellente isolamento termico e acustico, riscaldamento a pavimento , predisposizione per impianto d’allarme e climatizzazione , rilevatori di fumo e gas , videocitofono , rete LAN cablata per connessione stabile e persiane napoletane con chiusura a vasistas. Il parco residenziale è dotato di impianto fotovoltaico da 5,5 kW per ciascun edificio , contri





