Valutazione immobiliare indipendente, accurata e gratuita
Appartamento in vendita ad Orta di Atella a 86.250 € (cod.657e39f3)
Caasa non ha sufficienti informazioni per commentare l'appartamento in vendita ad Orta di Atella - 657e39f3.
Analisi immobiliare
I dati in posseso di Caasa per quest'immobile sono insufficienti, inaffidabili o contraddittori per proporre un'analisi attendibile.
Mercato immobiliare ad Orta di Atella
Per quanto riguarda più in generale la città di Orta di Atella, sono presenti al momento più di 200 annunci per
appartamenti in vendita (meno del 5% dell'intera provincia) .
La dinamica dei prezzi in tutta la città mostra che negli ultimi 6 mesi, i prezzi per appartamenti in vendita sono
sostanzialmente stabili (-0,02%).
NOVITÀ Il risultato che vedi dipende dai dati che siamo riusciti ad estrarre dall'annuncio: ottieni una stima più accuranta di questo immobile, inserendo dati più precisi.
N.B. L'Opinione di Caasa® è un servizio sperimentale realizzato tramite tecniche di Intelligenza Artificiale, fornito senza alcuna garanzia di correttezza e completezza. Leggi il disclaimer o segnalaci un problema.
IMMAGINI
IN SINTESI
DESCRIZIONE
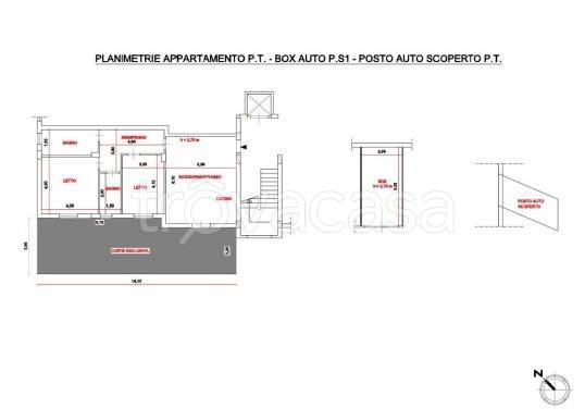
con posto auto con terrazza in asta giudiziaria
piena ed intera proprietà di porzione immobiliare costituita da appartamento, box auto e posto auto scoperto facente parte del complesso immobiliare denominato “P.co degli Ulivi” – Scala A ubicato in Orta di Atella (CE) alla Via Fabrizio De Andrè n. […]
