Valutazione immobiliare indipendente, accurata e gratuita
L'Opinione di Caasa® per l'appartamento in vendita a Lusciano a 285.000 € (cod.6522d107)
Secondo Caasa, per l'appartamento in vendita a Lusciano, la richiesta di 285.000 € è equilibrata rispetto agli annunci simili.
Analisi immobiliare
L'appartamento è proposto in vendita a
285.000 € per una
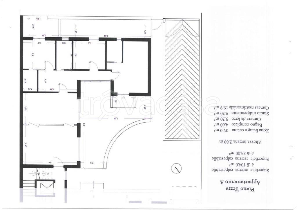
superficie commerciale di
100 m² e quindi ad un prezzo per metro quadrato pari a
2850 €/m²
.
Tale valore
è in linea con quello stimato da Caasa per immobili in vendita simili per tipologia, caratteristiche e classe energetica, che è compreso tra
2.755 €/m² e
2.968 €/m².
Sono stati utilizzati come raffronto i soli valori medi cittadini per appartamenti (da 1.290 €/m² a 2.525 €/m²) e per quadrivani (da 1.820 €/m² a 2.650 €/m²), visto che non è stato possibile determinare in modo affidabile la posizione dell'immobile. All'elaborazione della stima ha però contribuito anche la classe energetica (A+) oltre alla condizione dell'immobile (di nuova costruzione) e alla presenza di alcune caratteristiche significative come la presenza dell'ascensore o il posto auto. Per questi motivi i valori considerati accettabili per l'offerta costituiscono un intervallo comunque ampio.
Mercato immobiliare a Lusciano
Per quanto riguarda più in generale la città di Lusciano, sono presenti al momento più di 200 annunci per
appartamenti in vendita (meno del 5% dell'intera provincia) .
La dinamica dei prezzi in tutta la città mostra che negli ultimi 6 mesi, i prezzi per appartamenti in vendita sono
in aumento (+4,60%).
NOVITÀ Il risultato che vedi dipende dai dati che siamo riusciti ad estrarre dall'annuncio: ottieni una stima più accuranta di questo immobile, inserendo dati più precisi.
N.B. L'Opinione di Caasa® è un servizio sperimentale realizzato tramite tecniche di Intelligenza Artificiale, fornito senza alcuna garanzia di correttezza e completezza. Leggi il disclaimer o segnalaci un problema.
IMMAGINI
IN SINTESI
PROPOSTO DA:
LIGORIO IMMOBILIARE
DESCRIZIONE
di nuova costruzione con posto auto di nuova costruzione con terrazza con balcone con ascensore
Nuovo complesso immobiliare **Appartamento in Vendita - Nuovo Complesso Immobiliare** Scopri il tuo nuovo rifugio in questo splendido appartamento situato al primo piano di un moderno complesso in fase di realizzazione, a pochi passi da piazza Magenta ad Aversa. Con una superficie calpestabile di 100 m², questo immobile offre un ampio salone e una cucina luminosa, caratterizzati da una vetrata scorrevole che apre su un balcone privato, perfetto per godere di momenti di relax all'aria aperta. La zona notte è un vero e proprio angolo di tranquillità, con una camera matrimoniale dotata di cabina armadio e bagno privato, oltre a due ulteriori camere da letto ideali per famiglie o ospiti. Ogni dettaglio è stato curato con materiali di prima qualità, garantendo un ambiente elegante e confortevole. L'appartamento è dotato di climatizzatori sia nella zona giorno che nella zona notte, per un comfort ottimale in ogni stagione. La sicurezza è una priorità: il sistema antifurto antintrusione con sensori volumetrici e infrarossi offre serenità e protezione. Inoltre, il complesso è servito da ascensore e include un box auto al piano S1. Con una questo appartamento non solo è moderno e funzionale, ma anche eco-sostenibile. Non perdere l'opportunità di vivere in un luogo che combina eleganza, comfort e sicurezza. Contattaci per maggiori informazioni e per prenotare una visita! Tel. 081.19846720 / 327.0295205 un nostro agente a vostra disposizione

