Valutazione immobiliare indipendente, accurata e gratuita

Casa indipendente in vendita a Caserta in zona San Clemente a 285.000 € (cod.64f1a73f)

Caasa non ha sufficienti informazioni per commentare la casa indipendente a Caserta in zona San Clemente - 64f1a73f.

Analisi immobiliare
I dati in posseso di Caasa per quest'immobile sono insufficienti, inaffidabili o contraddittori per proporre un'analisi attendibile.
Mercato immobiliare a Caserta
Per quanto riguarda più in generale la città di Caserta, sono presenti al momento oltre 500 annunci per case indipendenti in vendita (meno del 10% dell'intera provincia) e il maggior numero di annunci per questa tipologia sono relativi alla zona di Acquaviva, mentre la zona di San Clemente risulta molto meno attiva considerando il numero di annunci presenti.
La richiesta media nella zona dove sorge la casa indipendente (San Clemente) è pari a 1.105 €/m² che la rende la più economica della città .
La dinamica dei prezzi in tutta la città mostra che negli ultimi 6 mesi, i prezzi per case indipendenti in vendita sono in aumento (+4,60%).

NOVITÀ Il risultato che vedi dipende dai dati che siamo riusciti ad estrarre dall'annuncio: ottieni una stima più accuranta di questo immobile, inserendo dati più precisi.

N.B. L'Opinione di Caasa® è un servizio sperimentale realizzato tramite tecniche di Intelligenza Artificiale, fornito senza alcuna garanzia di correttezza e completezza. Leggi il disclaimer o segnalaci un problema.

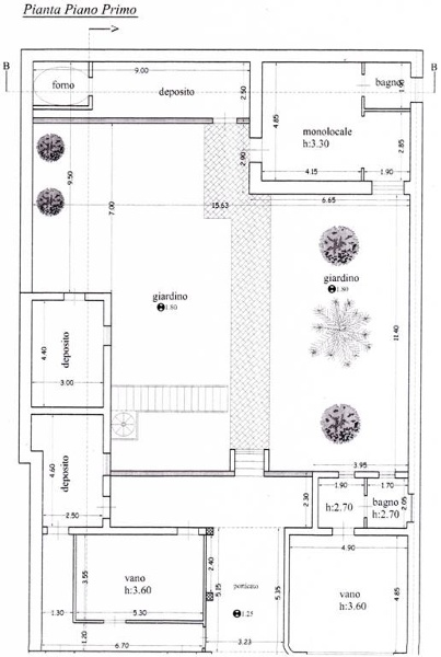
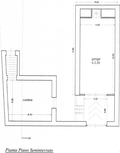
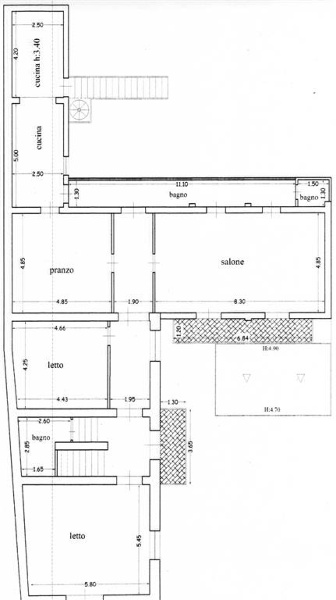
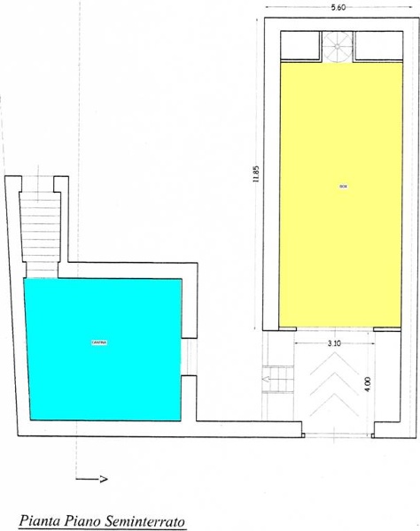
IMMAGINI

IN SINTESI

Prezzo:
285.000 €
Superficie:
300 m²
Prezzo al m²:
950 €/m²
Piano:
terra
Bagni:
3
Classe energetica:
n.d.
Città:
Caserta (CE)
Zona OMI:
D15 (SAN CLEMENTE - CENTURANO)
Indirizzo:
Pubblicato:
mar 21 gennaio 2025

PROPOSTO DA:

CONTESTABILE IMMOBILIARE

DESCRIZIONE

con posto auto con garage con giardino

Caserta frazione San Clemente a pochi passi dal costruendo Policlinico ed in prossimità dello svincolo della Variante ANAS proponiamo la vendita di un esclusivo Fabbricato indipendente su un lotto di 600 mq. Il fabbricato si sviluppa su due piani (pi […]

  • yescasa.it