Valutazione immobiliare indipendente, accurata e gratuita
Appartamento in vendita a Caserta in zona Centro Città a 190.000 € (cod.649d9633)
Caasa non ha sufficienti informazioni per commentare l'appartamento a Caserta in zona Centro Città - 649d9633.
Analisi immobiliare
I dati in posseso di Caasa per quest'immobile sono insufficienti, inaffidabili o contraddittori per proporre un'analisi attendibile.
Mercato immobiliare a Caserta
Per quanto riguarda più in generale la città di Caserta, sono presenti al momento ben circa mille annunci per
appartamenti in vendita (quasi il 20% dell'intera provincia)
e il maggior numero di annunci per questa tipologia sono relativi alla zona di Acquaviva, ma anche la zona di Centro Città è molto attiva dal punto di vista immobiliare.
La richiesta media nella zona dove sorge l'appartamento (Centro Città pressi Via Roma) è pari a
1.925 €/m² e ne fa la più pregiata della città .
La dinamica dei prezzi in tutta la città mostra che negli ultimi 6 mesi, i prezzi per appartamenti in vendita sono
in sostanziale aumento (+5,14%).
NOVITÀ Il risultato che vedi dipende dai dati che siamo riusciti ad estrarre dall'annuncio: ottieni una stima più accuranta di questo immobile, inserendo dati più precisi.
N.B. L'Opinione di Caasa® è un servizio sperimentale realizzato tramite tecniche di Intelligenza Artificiale, fornito senza alcuna garanzia di correttezza e completezza. Leggi il disclaimer o segnalaci un problema.
IMMAGINI
IN SINTESI
DESCRIZIONE
di recente ristrutturazione con posto auto con terrazza con balcone con ascensore di recente ristrutturazione
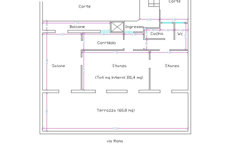
Da Privato. Vendesi Attico sito al 6° Piano del “PALAZZO PAGANO” Via Roma 93-95, Caserta (CE). Il fabbricato è dotato di ascensore. L’immobile è composto da: - Cucina - Bagno - Salone - 3 Camere da letto - Terrazza da 60.80 mq - Balcone La superficie interna calpestabile è di 101.40 mq. L’ampia terrazza affaccia su Via Roma, mentre dal Balcone laterale è possibile vedere la Reggia di Caserta. L’appartamento non è comprensivo di posto auto ma è dotato di box/dispensa. L’acquisto dell’appartamento comporta anche l’acquisto della quota dell’appartamento del custode (compreso nel prezzo). È prevista a breve la ristrutturazione del fabbricato, i cui lavori non sono a carico dell’acquirente. Il prezzo dell’attico è di 190.000€. Si tiene a precisare che il proprietario non vuole essere contattato da a genti o agenzie immobiliari. Per info o appuntamenti contattare il Geom. Enrico Pagano

