Valutazione immobiliare indipendente, accurata e gratuita
L'Opinione di Caasa® per l'appartamento in vendita ad Aversa a 340.000 € (cod.652c0246)
Secondo Caasa, per l'appartamento in vendita ad Aversa, la richiesta di 340.000 € è equilibrata rispetto agli annunci simili.
Analisi immobiliare
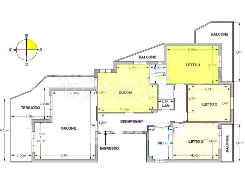
L'appartamento, situato nei pressi di Via Ludovico Ariosto nella zona OMI C9, è proposto in vendita a
340.000 € per una
superficie commerciale di
158 m² e quindi ad un prezzo per metro quadrato pari a
2151 €/m²
.
Questo prezzo
è perfettamente allineato a quello stimato da Caasa per immobili in vendita simili per tipologia, caratteristiche, classe energetica e localizzati nella stessa zona OMI, che è compreso tra
2.164 €/m² e
2.309 €/m².
La conoscenza con buona approssimazione della localizzazione dell'immobile ha consentito di utilizzare come raffronto i dati medi elaborati esattamente nella zona OMI di appertenenza (ZONA PARCO POZZI). Inoltre, Caasa ha potuto affinare la stima anche con la conoscenza della classe energetica (C) oltre che dello stato dell'immobile (di recente ristrutturazione) e di alcune caratteristiche significative come il posto auto. Per queste ragioni è possibile considerare un intervallo di valori accettabili per l'offerta abbastanza limitato.
Mercato immobiliare ad Aversa
Per quanto riguarda più in generale la città di Aversa, sono presenti al momento quasi 500 annunci per
appartamenti in vendita (meno del 10% dell'intera provincia)
e il maggior numero di annunci per questa tipologia sono relativi alla zona di Centro Città.
Possiamo inoltre considerare che in tutta la città negli ultimi 6 mesi, i prezzi per appartamenti in vendita sono
in debole aumento (+2,16%).
NOVITÀ Il risultato che vedi dipende dai dati che siamo riusciti ad estrarre dall'annuncio: ottieni una stima più accuranta di questo immobile, inserendo dati più precisi.
N.B. L'Opinione di Caasa® è un servizio sperimentale realizzato tramite tecniche di Intelligenza Artificiale, fornito senza alcuna garanzia di correttezza e completezza. Leggi il disclaimer o segnalaci un problema.
IMMAGINI
IN SINTESI
PROPOSTO DA:
E.F. Property Solution
DESCRIZIONE
di recente ristrutturazione con posto auto con terrazza con balcone di recente ristrutturazione con cortile
Appartamento in Vendita ad Aversa - Via Ludovico Ariosto** Scopri la tua nuova casa nel cuore di Aversa! Questo ampio appartamento di 150 mq calpestabili è situato in una posizione centrale, a pochi passi dal vivace viale Kennedy. La luminosità è garantita grazie alla tripla esposizione, che riempie gli spazi di luce naturale durante tutto il giorno. L'immobile, completamente ristrutturato e dotato di aria condizionata, offre 4 camere da letto spaziose, un salone doppio perfetto per accogliere amici e familiari, e una cucina living moderna. Gli ampi terrazzi soleggiati e i balconi a livello sono ideali per godere di momenti di relax all'aperto. Inoltre, la proprietà include doppi accessori e una cantinola spaziosa, mentre il comodo posto auto in cortile condominiale rende la vita ancora più semplice. L'appartamento è accessibile anche per persone con mobilità ridotta, offrendo un ambiente confortevole per tutti. Non perdere l'opportunità di visitarlo: contattaci per un appuntamento telefonico


