Valutazione immobiliare indipendente, accurata e gratuita
Negozio in affitto a Mirabella Eclano a 1.200 € mese (cod.63c94f59)
Caasa non ha sufficienti informazioni per commentare il negozio in affitto a Mirabella Eclano - 63c94f59.
Analisi immobiliare
I dati in posseso di Caasa per quest'immobile sono insufficienti, inaffidabili o contraddittori per proporre un'analisi attendibile.
Mercato immobiliare a Mirabella Eclano
Per quanto riguarda più in generale il comune di Mirabella Eclano, sono presenti al momento meno di dieci annunci per
negozi in affitto (meno del 5% dell'intera provincia)
e il maggior numero di annunci per questa tipologia sono relativi alla zona di Calore.
Vedi altre informazioni direttamente su
Mercato-Immobiliare.info
NOVITÀ Il risultato che vedi dipende dai dati che siamo riusciti ad estrarre dall'annuncio: ottieni una stima più accuranta di questo immobile, inserendo dati più precisi.
N.B. L'Opinione di Caasa® è un servizio sperimentale realizzato tramite tecniche di Intelligenza Artificiale, fornito senza alcuna garanzia di correttezza e completezza. Leggi il disclaimer o segnalaci un problema.
IMMAGINI
IN SINTESI
DESCRIZIONE
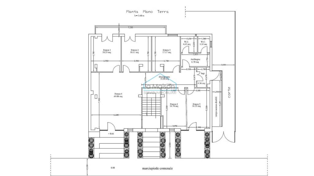
Locale commerciale in affitto! Situato al piano terra, questo spazioso locale di 170 mq calpestabili offre un'opportunità unica per avviare la tua attività in una posizione strategica. Con due ampie vetrine fronte strada, il locale garantisce massima visibilità e accesso diretto senza barriere architettoniche, ideale per accogliere ogni cliente con facilità. Internamente, la proprietà è suddivisa in sei stanze, perfette per organizzare al meglio gli spazi secondo le tue esigenze. Inoltre, dispone di un antibagno e due bagni, alcuni dei quali adattati per persone con disabilità, assicurando comfort e praticità. Non perdere l'occasione di dare vita alla tua attività in questo spazio versatile e accogliente

