Valutazione immobiliare indipendente, accurata e gratuita
L'Opinione di Caasa® per la casa indipendente in vendita a Taurianova a 55.000 € (cod.654bc71e)
Secondo Caasa, per la casa indipendente in vendita a Taurianova, la richiesta di 55.000 € è significativamente vantaggiosa rispetto agli annunci simili.
Analisi immobiliare
La casa indipendente, situata nella zona OMI C2, è proposta in vendita a
55.000 € per una
superficie commerciale di
113 m² e quindi ad un prezzo per metro quadrato pari a
486 €/m²
.
Questo prezzo
è più vantaggioso di quello stimato da Caasa per immobili in vendita simili per tipologia e caratteristiche, presenti nella stessa zona, che è compreso tra
642 €/m² e
757 €/m².
Data la posizione della casa indipendente sono stati utilizzati come raffronto i valori medi nelle zone limitrofe . Caasa non è stata in grado di determinare la classe energetica, ma ad affinare la stima ha contribuito però anche la presenza di alcune caratteristiche significative come la disponibilità di una cantina. In virtù di queste considerazioni l'intervallo dei valori possibili per l'offerta è relativamente ampio.
Mercato immobiliare a Taurianova
Per quanto riguarda più in generale il comune di Taurianova, sono presenti al momento più di 150 annunci per
case indipendenti in vendita (meno del 10% dell'intera provincia)
e il maggior numero di annunci per questa tipologia sono relativi alla zona di San Martino.
Possiamo inoltre considerare che in tutto il comune negli ultimi 6 mesi, i prezzi per case indipendenti in vendita sono
in calo (-4,99%).
NOVITÀ Il risultato che vedi dipende dai dati che siamo riusciti ad estrarre dall'annuncio: ottieni una stima più accuranta di questo immobile, inserendo dati più precisi.
N.B. L'Opinione di Caasa® è un servizio sperimentale realizzato tramite tecniche di Intelligenza Artificiale, fornito senza alcuna garanzia di correttezza e completezza. Leggi il disclaimer o segnalaci un problema.
IMMAGINI
IN SINTESI
PROPOSTO DA:
immobiliare veneruso snc
DESCRIZIONE
con cantina con terrazza con giardino
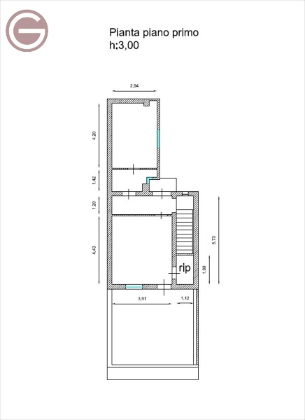
Vendesi, a Taurianova, in zona semi-centrale, una casa indipendente con annessa corte e giardino composta da un piano terra suddiviso in: cucina, bagno, salone, sottoscala, corridoio ed una camera; primo piano suddiviso in: disimpegno, due camere da letto, ripostiglio e terrazzo di circa 27mq. (Rif.1513) Per consultare tutti i nostri annunci vai su: www.gieffegroup.it Attiva le notifiche sulle nostre pagine social per restare aggiornato in tempo reale. Pubblichiamo, quotidianamente, nuovi annunci. Ci trovi su: - Instragram: @gieffetaurianova https://www.instagram.com/gieffetaurianova/ - Facebook: Agenzia Gieffe Taurianova https://www.facebook.com/gieffetaurianova/ - Tik Tok: https://www.tiktok.com/@gieffe.taurianova?lang=it - Whatsapp: 347.4885688 / 379.3117809

