Valutazione immobiliare indipendente, accurata e gratuita
Casa indipendente in vendita a San Pietro in Guarano a 198.000 € (cod.6566b2fa)
Caasa non ha sufficienti informazioni per commentare la casa indipendente a San Pietro in Guarano - 6566b2fa.
Analisi immobiliare
I dati in posseso di Caasa per quest'immobile sono insufficienti, inaffidabili o contraddittori per proporre un'analisi attendibile.
Mercato immobiliare a San Pietro in Guarano
Per quanto riguarda più in generale il comune di San Pietro in Guarano, sono presenti al momento più di venti annunci per
case indipendenti in vendita (meno dell'1% dell'intera provincia) .
NOVITÀ Il risultato che vedi dipende dai dati che siamo riusciti ad estrarre dall'annuncio: ottieni una stima più accuranta di questo immobile, inserendo dati più precisi.
N.B. L'Opinione di Caasa® è un servizio sperimentale realizzato tramite tecniche di Intelligenza Artificiale, fornito senza alcuna garanzia di correttezza e completezza. Leggi il disclaimer o segnalaci un problema.
IMMAGINI
IN SINTESI
PROPOSTO DA:
ISFIN S.R.L.
DESCRIZIONE
con cantina con giardino con angolo cottura con termocondizionamento
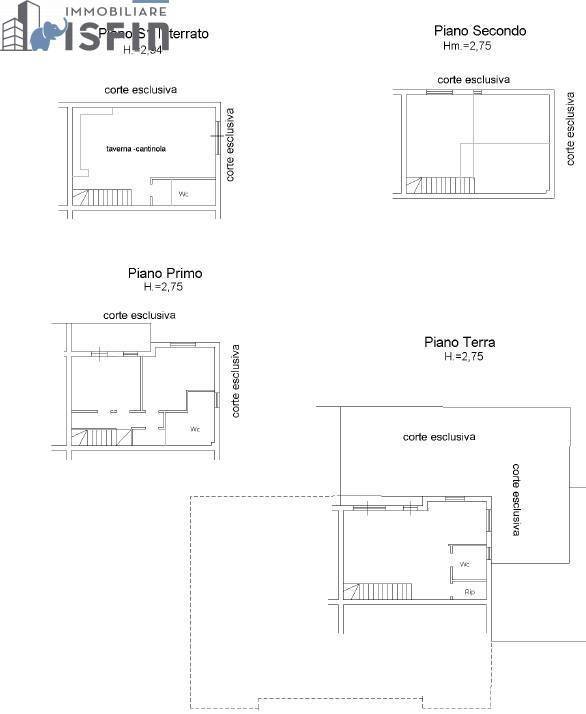
A San Pietro in Guarano (CS) in Via Padula Due Forni n°60 - ISFIN Immobiliare propone in vendita una villa posta su quattro livelli di ca 310 mq e ca 60 mq di giardino. L'immobile è così suddiviso: Piano seminterrato/tavernetta composto da: ingresso - ampio soggiorno con angolo cottura in muratura, lavanderia/wc e ripostiglio. Piano terra composto da: ingresso - soggiorno, un bagno e ripostiglio. Primo piano composto da: camera da letto, stanza uso studio, bagno e cabina armadio. Secondo piano/mansarda composto da: due camere da letto e un bagno. Completa la proprietà un impianto fotovoltaico di KW 6, climatizzatori al piano sottotetto e stufa a pellet collegata all'impianto di riscaldamento. Per ulteriori informazioni e/o eventuale appuntamento chiami Isfin al numero 0984465958 o visiti il sito www.isfinsrl.it



