Valutazione immobiliare indipendente, accurata e gratuita
Appartamento in vendita a Rende in zona Roges a 245.000 € (cod.6545a300)
Caasa non ha sufficienti informazioni per commentare l'appartamento in vendita a Rende in zona Roges - 6545a300.
Analisi immobiliare
I dati in posseso di Caasa per quest'immobile sono insufficienti, inaffidabili o contraddittori per proporre un'analisi attendibile.
Mercato immobiliare a Rende
Per quanto riguarda più in generale la città di Rende, sono presenti al momento oltre 500 annunci per
appartamenti in vendita (meno del 10% dell'intera provincia)
e il maggior numero di annunci per questa tipologia sono relativi alla zona di Quattromiglia, mentre nella zona di Roges è presente un numero significativamente inferiore di annunci.
La richiesta media nella zona dove sorge l'appartamento (Roges) è pari a
1.535 €/m², molto vicina ai valori della zona Quattromiglia che sono i più alti della città .
Per quanto riguarda la dinamica dei prezzi, negli ultimi 6 mesi i prezzi medi in tutta la città per appartamenti in vendita sono
in leggero aumento (+2,53%).
NOVITÀ Il risultato che vedi dipende dai dati che siamo riusciti ad estrarre dall'annuncio: ottieni una stima più accuranta di questo immobile, inserendo dati più precisi.
N.B. L'Opinione di Caasa® è un servizio sperimentale realizzato tramite tecniche di Intelligenza Artificiale, fornito senza alcuna garanzia di correttezza e completezza. Leggi il disclaimer o segnalaci un problema.
IMMAGINI
IN SINTESI
PROPOSTO DA:
RETE IMMOBILIARE.EU S.R.L.
VIA XXIV MAGGIO, 78, Cosenza (CS)
Verificata da Caasa®
DESCRIZIONE
con terrazza con termocondizionamento con angolo cottura con ascensore
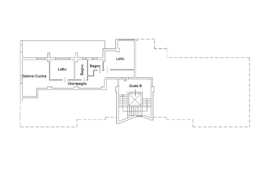
In vendita a Rende, nella ricercata zona di Roges, Rete Immobiliare.eu propone un elegante attico di 95 mq interni circa, più terrazzo di mq 202 situato al terzo piano con ascensore. L'appartamento offre un'ottima distribuzione degli spazi ed è compo […]
