Valutazione immobiliare indipendente, accurata e gratuita
L'Opinione di Caasa® per l'appartamento in vendita a Paola a 90.000 € (cod.6513c2ae)
Secondo Caasa, per l'appartamento in vendita a Paola, la richiesta di 90.000 € è equilibrata rispetto agli annunci simili.
Analisi immobiliare
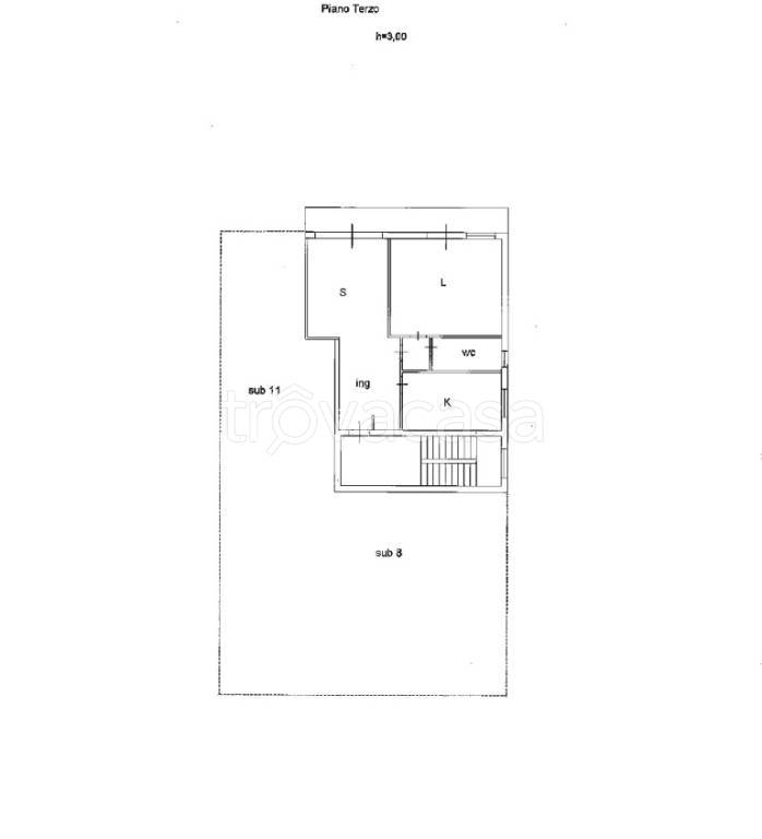
L'appartamento, situato nella zona OMI B1, è proposto in vendita (da Immobil City di Rende Gaetano) a
90.000 € per una
superficie commerciale di
94 m² e quindi ad un prezzo per metro quadrato pari a
957 €/m²
.
Questo prezzo
è molto vicino a quello stimato da Caasa per immobili in vendita simili per tipologia e caratteristiche, presenti nella stessa zona, che è compreso tra
906 €/m² e
1.004 €/m².
Data la posizione dell'appartamento sono stati utilizzati come raffronto i valori medi nelle zone limitrofe . Caasa non è stata in grado di determinare la classe energetica, ma ad affinare la stima ha contribuito però anche lo stato dell'immobile (di recente ristrutturazione). Per i motivi esposti l'intervallo dei valori possibili per l'offerta è relativamente ampio.
Mercato immobiliare a Paola
Per quanto riguarda più in generale il comune di Paola, sono presenti al momento più di 150 annunci per
appartamenti in vendita (meno del 5% dell'intera provincia) .
Possiamo inoltre considerare che in tutto il comune negli ultimi 6 mesi, i prezzi per appartamenti in vendita sono
sostanzialmente stabili (-0,95%).
NOVITÀ Il risultato che vedi dipende dai dati che siamo riusciti ad estrarre dall'annuncio: ottieni una stima più accuranta di questo immobile, inserendo dati più precisi.
N.B. L'Opinione di Caasa® è un servizio sperimentale realizzato tramite tecniche di Intelligenza Artificiale, fornito senza alcuna garanzia di correttezza e completezza. Leggi il disclaimer o segnalaci un problema.
IMMAGINI
IN SINTESI
DESCRIZIONE
di recente ristrutturazione con terrazza con balcone di recente ristrutturazione con termocondizionamento con riscaldamento autonomo
Appartamento in Vendita a Paola (Cs) Scopri questo splendido appartamento situato nel cuore di Paola, un vero gioiello di 94 m² al terzo piano di un elegante edificio condominiale. Completamente ristrutturato, l'immobile offre un ampio ingresso che conduce a un soggiorno accogliente, perfetto per momenti di relax o per intrattenere gli amici. La cucina funzionale è ideale per chi ama cucinare, mentre la camera da letto matrimoniale garantisce tranquillità e comfort. Con la possibilità di creare una seconda camera da letto, questo appartamento si adatta perfettamente alle esigenze di famiglie o professionisti. Un bagno ben progettato e un balcone con affaccio esterno completano l'offerta, permettendo di godere di spazi ben distribuiti e luminosi. La posizione centrale assicura comodità e accesso a tutti i servizi della città. Il prezzo è di € 90.000,00, trattabili, rendendo questa opportunità ancora più interessante. Dotato di riscaldamento autonomo e climatizzazione caldo/freddo, l'appartamento è pronto per essere abitato. Non perdere l'occasione di vivere in un ambiente moderno e confortevole, prenota subito una visita


