Valutazione immobiliare indipendente, accurata e gratuita
Casa indipendente in vendita a Montalto Uffugo in zona Taverna a 238.000 € (cod.64ec8936)
Caasa non ha sufficienti informazioni per commentare la casa indipendente a Montalto Uffugo in zona Taverna - 64ec8936.
Analisi immobiliare
I dati in posseso di Caasa per quest'immobile sono insufficienti, inaffidabili o contraddittori per proporre un'analisi attendibile.
Mercato immobiliare a Montalto Uffugo
Per quanto riguarda più in generale la città di Montalto Uffugo, sono presenti al momento più di 200 annunci per
case indipendenti in vendita (meno del 5% dell'intera provincia)
e il maggior numero di annunci per questa tipologia sono relativi proprio alla zona di Taverna.
La richiesta media nella zona dove sorge la casa indipendente (Taverna) è pari a
1.100 €/m² che la rende la più economica della città .
Possiamo inoltre considerare che in tutta la città negli ultimi 6 mesi, i prezzi per case indipendenti in vendita sono
in forte aumento (+17,35%).
NOVITÀ Il risultato che vedi dipende dai dati che siamo riusciti ad estrarre dall'annuncio: ottieni una stima più accuranta di questo immobile, inserendo dati più precisi.
N.B. L'Opinione di Caasa® è un servizio sperimentale realizzato tramite tecniche di Intelligenza Artificiale, fornito senza alcuna garanzia di correttezza e completezza. Leggi il disclaimer o segnalaci un problema.
IMMAGINI
IN SINTESI
PROPOSTO DA:
ISFIN S.R.L.
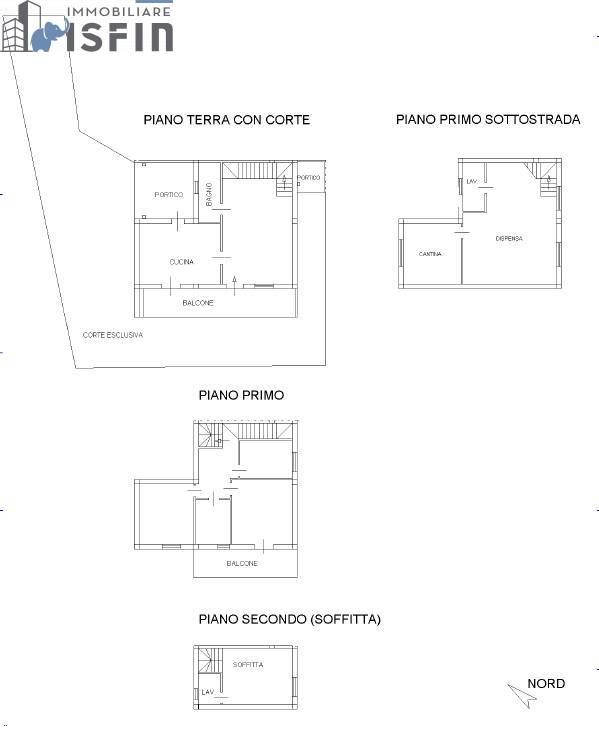
DESCRIZIONE
di recente costruzione con terrazza con balcone di nuova costruzione con cantina con giardino di recente costruzione con cucina abitabile con termocondizionamento con riscaldamento autonomo
A Montalto Uffugo (CS) in Via Saverio Mercadante - ISFIN Immobiliare propone in vendita una villa di recente costruzione di circa 195 m ( di cui 186 m sono di superficie coperta e circa 7 m di balconi) sviluppato su tre piani oltre corte ad uso esclusivo di circa 155 m. La villetta cos composta: al piano terra: Ingresso , calone doppio, cucina abitabile con salottino tv e balcone, bagno. Al primo piano: tre camere da letto di cui due con balcone e bagno. Al secondo piano sottotetto una camera e bagno. Al piano seminterrato con accesso da scala interna un'ampia tavernetta con bagno e lavanderia. Per ulteriori informazioni e/o eventuale appuntamento chiami - ISFIN IMMOBILIARE - al numero 0984465958 o visiti il sito www.isfinsrl.it - SC9474948



