Valutazione immobiliare indipendente, accurata e gratuita
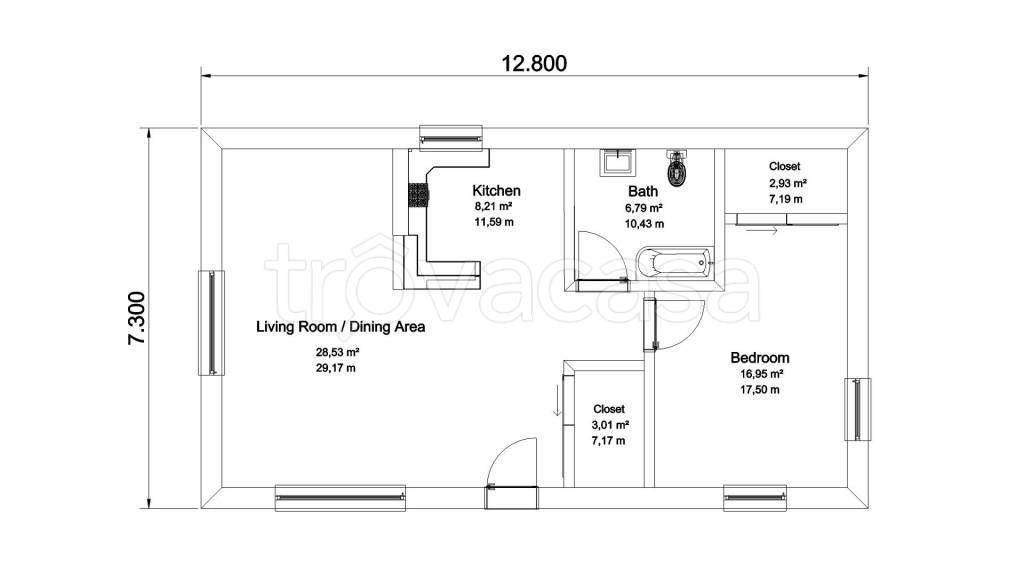
Appartamento in vendita a Corigliano-Rossano in zona Cantinella a 81.534 € (cod.6534c453)
Caasa non ha sufficienti informazioni per commentare l'appartamento a Corigliano-Rossano Cantinella - 6534c453.
Analisi immobiliare
I dati in posseso di Caasa per quest'immobile sono insufficienti, inaffidabili o contraddittori per proporre un'analisi attendibile.
Mercato immobiliare a Corigliano-Rossano
Per quanto riguarda più in generale la città di Corigliano-Rossano, sono presenti al momento oltre 500 annunci per
appartamenti in vendita (meno del 10% dell'intera provincia)
e il maggior numero di annunci per questa tipologia sono relativi alla zona di Rossano, mentre la zona di Cantinella risulta molto meno attiva considerando il numero di annunci presenti.
La dinamica dei prezzi in tutta la città mostra che negli ultimi 6 mesi, i prezzi per appartamenti in vendita sono
in sostanziale aumento (+6,94%).
NOVITÀ Il risultato che vedi dipende dai dati che siamo riusciti ad estrarre dall'annuncio: ottieni una stima più accuranta di questo immobile, inserendo dati più precisi.
N.B. L'Opinione di Caasa® è un servizio sperimentale realizzato tramite tecniche di Intelligenza Artificiale, fornito senza alcuna garanzia di correttezza e completezza. Leggi il disclaimer o segnalaci un problema.
IMMAGINI
IN SINTESI
PROPOSTO DA:
Simplex Domus S.R.L.
DESCRIZIONE
di nuova costruzione di nuova costruzione in asta giudiziaria
Asta appartamento a Corigliano Rossano (CS) [SY584671] Via delle Industrie, 87064 Cantinella CS, Italia Proprietà per l’intero di un appartamento sito in località Cantinella – via Nazionale s.n.c Zona Cens. 2 - cat. A/2 classe 1 - cons. 7 vani – supe […]
