Valutazione immobiliare indipendente, accurata e gratuita
Appartamento in vendita a Castrolibero in zona Andreotta a 48.183 € (cod.65348fff)
Caasa non ha sufficienti informazioni per commentare l'appartamento a Castrolibero in zona Andreotta - 65348fff.
Analisi immobiliare
I dati in posseso di Caasa per quest'immobile sono insufficienti, inaffidabili o contraddittori per proporre un'analisi attendibile.
Mercato immobiliare a Castrolibero
Per quanto riguarda più in generale il comune di Castrolibero, sono presenti al momento più di cento annunci per
appartamenti in vendita (meno del 5% dell'intera provincia)
e il maggior numero di annunci per questa tipologia sono relativi proprio alla zona di Andreotta.
Per quanto riguarda la richiesta media in zona Andreotta, dove sorge l'appartamento, essa è pari a circa
850 €/m² per appartamenti in vendita.
La dinamica dei prezzi in tutto il comune mostra che negli ultimi 6 mesi, i prezzi per appartamenti in vendita sono
in sostanziale aumento (+7,36%).
Invece i prezzi per la zona di sono in debole aumento.
NOVITÀ Il risultato che vedi dipende dai dati che siamo riusciti ad estrarre dall'annuncio: ottieni una stima più accuranta di questo immobile, inserendo dati più precisi.
N.B. L'Opinione di Caasa® è un servizio sperimentale realizzato tramite tecniche di Intelligenza Artificiale, fornito senza alcuna garanzia di correttezza e completezza. Leggi il disclaimer o segnalaci un problema.
IMMAGINI
IN SINTESI
PROPOSTO DA:
Simplex Domus S.R.L.
DESCRIZIONE
di nuova costruzione in asta giudiziaria con balcone con giardino di nuova costruzione con cantina
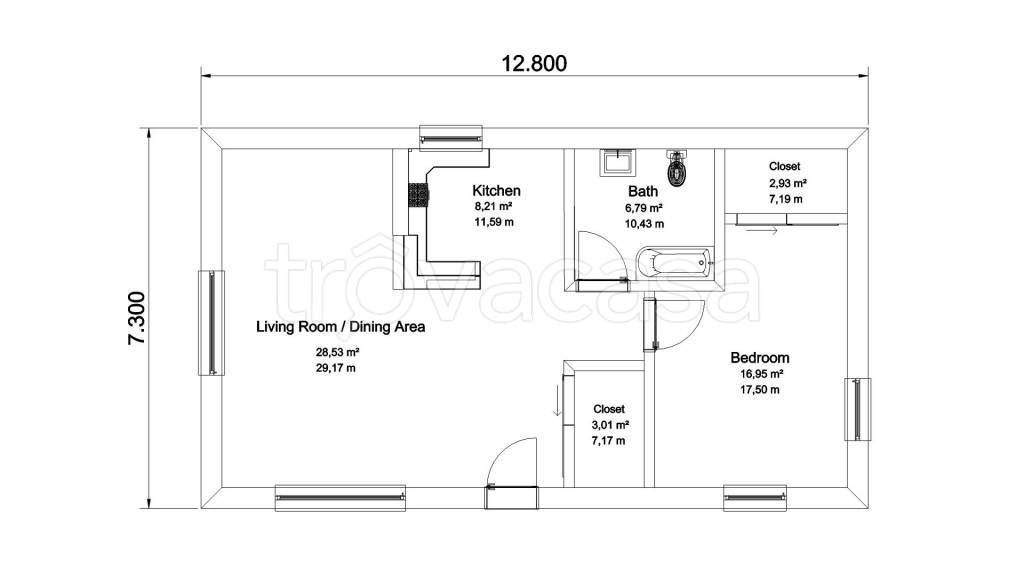
Asta appartamento a Castrolibero (CS) [SY381821] Via Napoli, 87040 Andreotta CS, Italia Appartamento composto al piano terra - seminterrato da ingresso, salone, disimpegno, scala, cucina, ripostiglio e bagno, al primo piano da ingresso lato strada, d […]
