Valutazione immobiliare indipendente, accurata e gratuita
Appartamento in vendita a Satriano a 164.025 € (cod.654de58b)
Caasa non ha sufficienti informazioni per commentare l'appartamento in vendita a Satriano - 654de58b.
Analisi immobiliare
I dati in posseso di Caasa per quest'immobile sono insufficienti, inaffidabili o contraddittori per proporre un'analisi attendibile.
Mercato immobiliare a Satriano
Per quanto riguarda più in generale il comune di Satriano, sono presenti al momento più di cinquanta annunci per
appartamenti in vendita (meno del 5% dell'intera provincia) .
La dinamica dei prezzi in tutto il comune mostra che negli ultimi 6 mesi, i prezzi per appartamenti in vendita sono
in deciso aumento (+8,26%).
NOVITÀ Il risultato che vedi dipende dai dati che siamo riusciti ad estrarre dall'annuncio: ottieni una stima più accuranta di questo immobile, inserendo dati più precisi.
N.B. L'Opinione di Caasa® è un servizio sperimentale realizzato tramite tecniche di Intelligenza Artificiale, fornito senza alcuna garanzia di correttezza e completezza. Leggi il disclaimer o segnalaci un problema.
IMMAGINI
IN SINTESI
PROPOSTO DA:
Simplex Domus S.R.L.
DESCRIZIONE
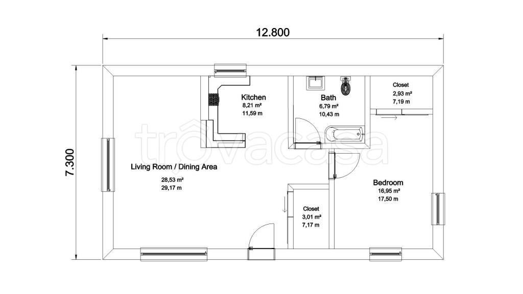
di nuova costruzione in asta giudiziaria con cantina con ascensore
Asta appartamento a Satriano (CZ) [SY601060] Via Orsa Minore, 88060 Satriano CZ, Italia Appartamento posto sull’intero piano primo e deriva dalla fusione di due unità immobiliari. Risulta composto da due ingressi, cucina - pranzo, soggiorno, quattro […]
