Valutazione immobiliare indipendente, accurata e gratuita
Appartamento in vendita a Satriano a 111.037 € (cod.654de578)
Caasa non ha sufficienti informazioni per commentare l'appartamento in vendita a Satriano - 654de578.
Analisi immobiliare
I dati in posseso di Caasa per quest'immobile sono insufficienti, inaffidabili o contraddittori per proporre un'analisi attendibile.
Mercato immobiliare a Satriano
Per quanto riguarda più in generale il comune di Satriano, sono presenti al momento più di cinquanta annunci per
appartamenti in vendita (meno del 5% dell'intera provincia) .
Per quanto riguarda la dinamica dei prezzi, negli ultimi 6 mesi i prezzi medi in tutto il comune per appartamenti in vendita sono
in deciso aumento (+8,26%).
NOVITÀ Il risultato che vedi dipende dai dati che siamo riusciti ad estrarre dall'annuncio: ottieni una stima più accuranta di questo immobile, inserendo dati più precisi.
N.B. L'Opinione di Caasa® è un servizio sperimentale realizzato tramite tecniche di Intelligenza Artificiale, fornito senza alcuna garanzia di correttezza e completezza. Leggi il disclaimer o segnalaci un problema.
IMMAGINI
IN SINTESI
PROPOSTO DA:
Simplex Domus S.R.L.
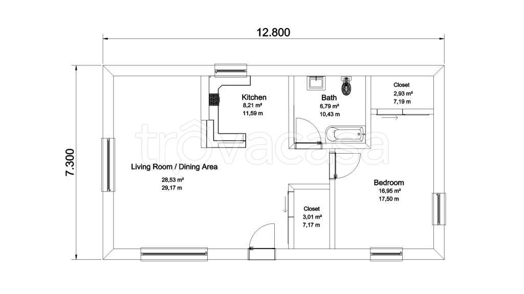
DESCRIZIONE
di nuova costruzione in asta giudiziaria con giardino di nuova costruzione
Asta appartamento a Satriano (CZ) [SY601058] Via Pietro Nenni, 8, 88060 Satriano CZ, Italia Il bene consiste in una unità immobiliare destinata a civile abitazione, costituita da zona ingresso/soggiorno/pranzo, cucina, due servizi igienici, due camer […]
