Valutazione immobiliare indipendente, accurata e gratuita
Casa indipendente a Magisano in zona San Pietro Magisano a 80.000 € (cod.651d87b9)
Caasa non ha sufficienti informazioni per commentare la casa indipendente a Magisano San Pietro Magisano - 651d87b9.
Analisi immobiliare
I dati in posseso di Caasa per quest'immobile sono insufficienti, inaffidabili o contraddittori per proporre un'analisi attendibile.
Mercato immobiliare a Magisano
Per quanto riguarda più in generale il comune di Magisano, sono presenti al momento meno di dieci annunci per
case indipendenti in vendita (meno dell'1% dell'intera provincia) .
Vedi altre informazioni direttamente su
Mercato-Immobiliare.info
NOVITÀ Il risultato che vedi dipende dai dati che siamo riusciti ad estrarre dall'annuncio: ottieni una stima più accuranta di questo immobile, inserendo dati più precisi.
N.B. L'Opinione di Caasa® è un servizio sperimentale realizzato tramite tecniche di Intelligenza Artificiale, fornito senza alcuna garanzia di correttezza e completezza. Leggi il disclaimer o segnalaci un problema.
IMMAGINI
IN SINTESI
PROPOSTO DA:
Case & affitti immobiliare
DESCRIZIONE
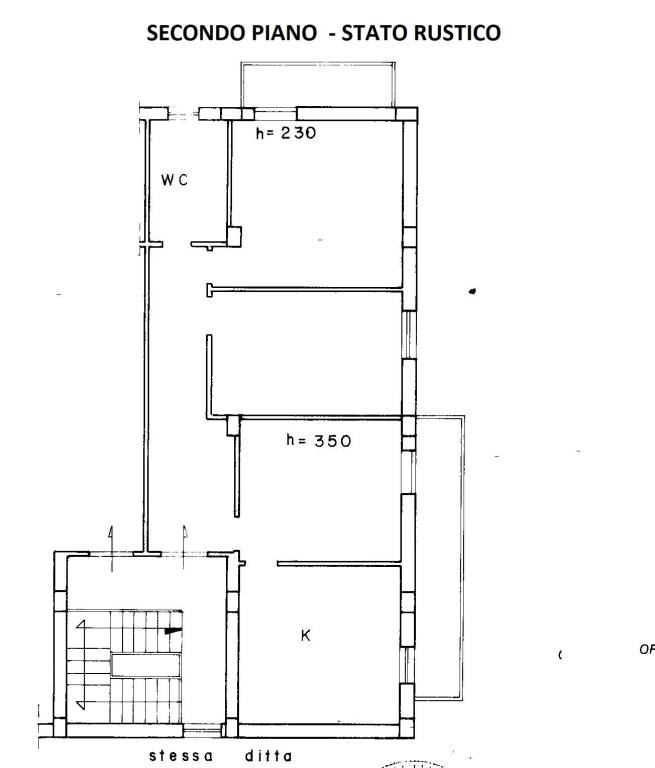
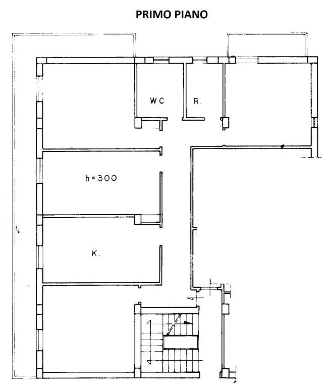
OTTIMO AFFARE, A San Pietro Magisano proponiamo in vendita intero stabile composto da 3 Piani fuori terra cosi composto: Piano Terra: NR 2 appartamenti di 98 mq e 105 mq per un totale di 203 Mq Primo Piano: NR 2 appartamento di 69 mq e 149 mq per un totale di 218 Mq Piano Secondo: Nr 2 Appartamenti per un totale di 214 mq attualmente allo stato rustico quindi da completare internamente. Il fabbricato per intero misura circa 640 mq, ottima opportunità di investimento. Nelle foto sono allegate le planimetrie di ogni singolo appartamento

