Valutazione immobiliare indipendente, accurata e gratuita
Appartamento in vendita a Catanzaro in zona Centro Città a 115.000 € (cod.64ee8db3)
Caasa non ha sufficienti informazioni per commentare l'appartamento a Catanzaro in zona Centro Città - 64ee8db3.
Analisi immobiliare
I dati in posseso di Caasa per quest'immobile sono insufficienti, inaffidabili o contraddittori per proporre un'analisi attendibile.
Mercato immobiliare a Catanzaro
Per quanto riguarda più in generale la città di Catanzaro, sono presenti al momento ben oltre mille annunci per
appartamenti in vendita (quasi la metà dell'intera provincia)
e il maggior numero di annunci per questa tipologia sono relativi proprio alla zona di Centro Città.
La richiesta media nella zona dove sorge l'appartamento (Centro Città pressi Via Francesco Acri) è pari a
1.035 €/m², non troppo distante dai valori medi cittadini per appartamenti in vendita.
La dinamica dei prezzi in tutta la città mostra che negli ultimi 6 mesi, i prezzi per appartamenti in vendita sono
sostanzialmente stabili (+0,70%).
NOVITÀ Il risultato che vedi dipende dai dati che siamo riusciti ad estrarre dall'annuncio: ottieni una stima più accuranta di questo immobile, inserendo dati più precisi.
N.B. L'Opinione di Caasa® è un servizio sperimentale realizzato tramite tecniche di Intelligenza Artificiale, fornito senza alcuna garanzia di correttezza e completezza. Leggi il disclaimer o segnalaci un problema.
IMMAGINI
IN SINTESI
PROPOSTO DA:
Regina Immobiliare
DESCRIZIONE
di nuova costruzione con posto auto di nuova costruzione con climatizzazione
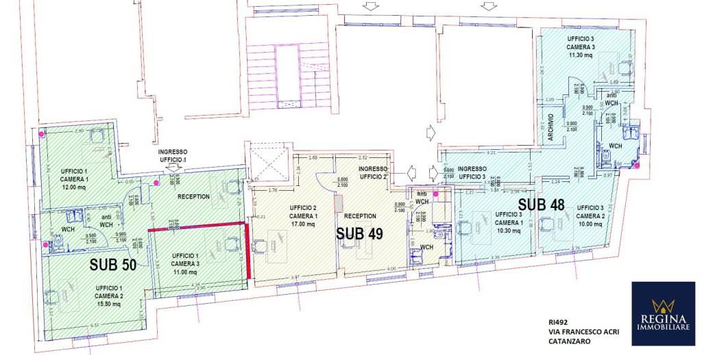
NUOVE COSTRUZIONI - Catanzaro, Via F. Acri, proponiamo in vendita luminosi uffici di diverse metrature, in corso di costruzione L'edificio è dotato di impianto di video sorveglianza condominiale, sala condominiale, locale biciclette e locale spazzatura ed è stato progettato con elevati standard qualitativi, con l'utilizzo di materiali di alta qualità nella realizzazione delle opere strutturali, di completamento e di finitura, cappotto termico, infissi in PVC con vetri ad isolamento termico e acustico, pompe di calore per la climatizzazione invernale e il raffrescamento estivo degli ambienti, pannelli fotovoltaici, impianto di domotica con applicazione Home + Control per la gestione smart degli scenari, il tutto ad elevata efficienza energetica in classe A4. Possibilità di scegliere i materiali da ampio capitolato presso lo show-room dedicato e di acquistare anche un box auto, ad un prezzo differente, situato al piano S2. Per visionare l'immobile o per ulteriori informazioni potete contattarci ai seguenti numeri: 0961.357183 - 351.6748498


