N.B. Tutti le informazioni immobiliari sono fornite senza alcuna garanzia. Leggi il disclaimer.
Appartamenti o uffici con cucina abitabile e con riscaldamento autonomo e con termocondizionamento in vendita a Edolo in zona Vico - pg. 25 di 41
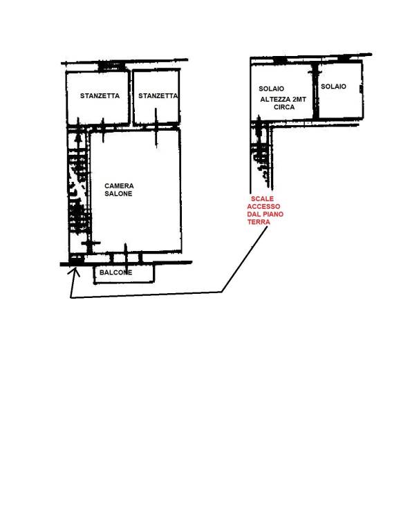
MODIFICA QUESTA RICERCATrilocale in vendita a Edolo via Guglielmo Marconi PREMIUM
EDOLO VENDESI TRILOCALI E QUADRILOCALI NUOVI IN CLASSE A3 CON BOX BALCONI E/O GIARDINO A PARTIRE DA €. 160.000 !!! CONSEGNA "CHIAVI IN MANO" PRIMAVERA 2024 !!! Realizzazione di nuovo complesso immobiliare con appartamenti in classe A3, […]
LEGGI ANCORA
- prezzo medio appartamento in zona Vico : 1635 €/m²
- prezzo medio trivano in zona Vico : 1840 €/m²
In centro, abitazione in cortile comune, di circa 130 mq. commerciali, composta al piano terra da cucina abitabile, soggiorno e piccolo giardinetto: al primo piano due camere, bagno e balcone. Cantina. Infissi e caldaia nuovi . Completa la proprietá magaz
appartamento Vico 49.000 €
In centro, abitazione in cortile comune, di circa 130 mq. commerciali, composta al piano terra da cucina abitabile, soggiorno e piccolo giardinetto: al primo piano due camere, bagno e balcone. Cantina. Infissi e caldaia nuovi . Completa la proprietá magazzino/deposito su due livelli per un totale di circ […]
LEGGI ANCORA
- prezzo medio appartamento in zona Vico : 1635 €/m²
- prezzo medio casa indipendente in zona Vico : 1531 €/m²
Via Volta
appartamento Vico 650.000 €
Como. Via Alessandro Volta . Al piano primo con ascensore. Propongo appartamento di 110 mq di tre locali e doppi servizi. Possibilit di posto auto a 25.000.00 in Via Rubini
LEGGI ANCORA
- prezzo medio appartamento in zona Vico : 1635 €/m²
- prezzo medio trivano in zona Vico : 1840 €/m²
Rif. 1670 Appartamento su 2piani in vendita in via Nazionale
appartamento Vico 155.000 €
Rif. 1670 - Immobiliare Conigliaro propone in vendita a Villagrazia di Carini sulla via nazionale casa indipendente su due piani, una casa indipendente da ristrutturare che offre un'opportunità unica di personalizzare la tua dimora ideale. Con una superficie commerciale di circa 179 mq, l'immobile è divi […]
LEGGI ANCORA
- prezzo medio appartamento in zona Vico : 1635 €/m²
- prezzo medio casa indipendente in zona Vico : 1531 €/m²
Attico / Mansarda di 171 m con più di 5 locali e box auto in vendita a Milano
appartamento Vico 1.330.000 €
Rif: APPARTAMENTO PORTA ROMANA - Luminoso appartamento situato al quinto ed ultimo piano di uno stabile d’epoca adiacente piazza Medaglie D’Oro in zona Porta Romana. L’immobile di oltre 170 mq. dispone anche di posto auto privato nel cortile interno ed è composto da due saloni separati da un terrazzo cen […]
LEGGI ANCORA
- prezzo medio appartamento in zona Vico : 1635 €/m²
- prezzo medio attico in zona Vico : 1869 €/m²
VIA VINCENZO MONTI
appartamento Vico 490.000 €
Vendita Appartamento VIA VINCENZO MONTI In stabile prestigioso epoca con servizio di portineria e ascensore, vendiamo mansarda di nuova ristrutturazione completamente arredata. Monolocale di mq 40 con cucina a vista, divano letto, piccolo studio separato, bagno con doccia. Pavimenti in parquet, aria cond […]
LEGGI ANCORA
- prezzo medio appartamento in zona Vico : 1635 €/m²
- prezzo medio mansarda in zona Vico : 2099 €/m²
Vendesi attico/mansarda a Edolo PREMIUM
- prezzo medio appartamento in zona Vico : 1635 €/m²
- prezzo medio attico in zona Vico : 1869 €/m²
Attico/mansarda in vendita a Edolo via Plizze
appartamento Vico 79.000 €
EDOLO IN BELLA POSIZIONE VENDESI AMPIO APPARTAMENTO CON BOX E CANTINA EDOLO IN POSIZIONE COMODISSIMA VICINO A TUTTE LE COMODITA'; Edolo caratteristica e storica località di villeggiatura, strategico crocevia per le più belle e rinomate localita' sciistiche di: Ponte Di Legno a soli 10 minuti , passo Apri […]
LEGGI ANCORA
- prezzo medio appartamento in zona Vico : 1635 €/m²
- prezzo medio attico in zona Vico : 1869 €/m²
Vendita Appartamento, in zona PIAZZA GARIBALDI, C.SO V.EMANUELE, C.SO UMBERTO I, V.KENNEDY, CALTANISSETTA
- prezzo medio appartamento in zona Vico : 1635 €/m²
- prezzo medio appartamento a Edolo : 1626 €/m²
SANT'AMBROGIO / VIA CAPPUCCIO
appartamento Vico 550.000 €
Vendita Appartamento SANT'AMBROGIO / VIA CAPPUCCIO In pieno centro storico a due passi da Santa Maria delle Grazie e dalle V Vie, in una delle zone di Milano culturalmente e storicamente più rilevanti ricca di bellezza e di storia, vendiamo in un palazzo d'epoca ampio bilocale di mq 55. L'appartamento è […]
LEGGI ANCORA
- prezzo medio appartamento in zona Vico : 1635 €/m²
- prezzo medio bivano in zona Vico : 2138 €/m²
Vendesi monolocale in Via Garibaldi
appartamento Vico 27.000 €
Property Sicily vende in esclusiva monolocale di 60 mq in Via Garibaldi a Porto Empedocle. L'immobile sito al piano terra è composto da un'ampia stanza e bagno. Sito a due passi da servizi e luoghi d'interesse della città. Richiesta 27.000 euro
LEGGI ANCORA
- prezzo medio appartamento in zona Vico : 1635 €/m²
- prezzo medio monolocale in zona Vico : 2012 €/m²
Vendita Locale commerciale, in zona VIA DON BOSCO,VIA PIGNATO, VIA S.FILIPPO NERI, VIA PALERMO, VIA R.ELENA, SAN CATALDO
Proposto da:
ufficio Vico 95.000 €
In vendita a San Cataldo, nella rinomata zona di Via Don Bosco, proponiamo un locale commerciale di 144 mq situato al piano terra. Questo spazio versatile, con ingresso indipendente, si presta perfettamente per diverse attività commerciali o come ufficio. L'immobile è composto da un ampio vano, una cucin […]
LEGGI ANCORA
- prezzo medio locale commerciale in zona Vico : 1182 €/m²
- prezzo medio casa semindipendente in zona Vico : 1596 €/m²
Vendesi attico/mansarda a Edolo PREMIUM
- prezzo medio appartamento in zona Vico : 1635 €/m²
- prezzo medio attico in zona Vico : 1869 €/m²
Luminoso bilocale allɺrco della Pace
appartamento Vico 260.000 €
VENDUTO!! All'ultimo piano con ascensore di una curata palazzina Vecchia Milano disponiamo di una luminosa soluzione composta da soggiorno con cucina a vista, bagno con doccia,cabina armadio, camera da letto. L'immobile è affittato a una persona referenziata con canone euro 12.000 oltre le sp […]
LEGGI ANCORA
- prezzo medio appartamento in zona Vico : 1635 €/m²
- prezzo medio bivano in zona Vico : 2138 €/m²
Appartamento in Via Fortezza
appartamento Vico 695.000 €
Milano-via Fortezza: Dama RE propone in vendita trilocale in zona Villa San Giovanni Fortezza Milano: la tua nuova casa IL QUARTIERE DI UNA VOLTA, LA TUA CASA DEL FUTURO La consegna è prevista per settembre 2026 con uno SCONTO del 4% sul prezzo di listino. L'appartamento, sito al primo piano è progettato […]
LEGGI ANCORA
- prezzo medio appartamento in zona Vico : 1635 €/m²
- prezzo medio casa indipendente in zona Vico : 1531 €/m²
PIAZZALE LIBIA / VIA FERRINI
appartamento Vico 1.350.000 €
Vendita Appartamento PIAZZALE LIBIA / VIA FERRINI L’eleganza a Milano ha un nuovo nome: Palazzo Ferrini. Un edificio in totale riqualificazione dove classe e raffinatezza sono l’espressione di un nuovo lifestyle. Una residenza di lusso composta da otto eleganti e sofisticati appartamenti. Un nuovo modo d […]
LEGGI ANCORA
- prezzo medio appartamento in zona Vico : 1635 €/m²
- prezzo medio appartamento a Edolo : 1626 €/m²
Centro Storico pregiato esclusivo pentalocale (ultimo piano con ascensore
Proposto da:
appartamento Vico 1.350.000 €
Nel cuore del centro storico di Brescia in contesto signorile, esclusivo splendido pentalocale dalle generose dimensioni, ottimamente rifinito con materiali di pregio, a seguito di una completa ristrutturazione che e' riuscita a rendere armonioso il gusto moderno abbinato al classico. Questa meravigliosa […]
LEGGI ANCORA
- prezzo medio appartamento in zona Vico : 1635 €/m²
- prezzo medio pentavano in zona Vico : 1469 €/m²
Via Volta
appartamento Vico 1.160.000 €
Ampio appartamento nuovo di 192 mq caratterizzato da archi, stucchi, colonne originali restaurate e soffitti a cassettoni dipinti. Il nuovo sviluppo ‘Palazzo Mugiasca’ propone appartamenti di varia metratura con finiture di pregio nel contesto esclusivo del centro storico, in via Alessandro Volta, 85 all […]
LEGGI ANCORA
- prezzo medio appartamento in zona Vico : 1635 €/m²
- prezzo medio quadrivano in zona Vico : 1581 €/m²
Trilocale in vendita a Edolo via Guglielmo Marconi PREMIUM
EDOLO VENDESI TRILOCALI E QUADRILOCALI NUOVI IN CLASSE A3 CON BOX BALCONI E/O GIARDINO A PARTIRE DA €. 160.000 !!! CONSEGNA "CHIAVI IN MANO" PRIMAVERA 2024 !!! Realizzazione di nuovo complesso immobiliare con appartamenti in classe A3, […]
LEGGI ANCORA
- prezzo medio appartamento in zona Vico : 1635 €/m²
- prezzo medio trivano in zona Vico : 1840 €/m²
02CV4823 - Appartamento - Viale Guglielmo Marconi
appartamento Vico 309.000 €
Marconi in graziosa palazzina proponiamo in vendita appartamento di 70 Mq del tutto ristrutturato, posto al quarto piano con ascensore, così composto: Ingresso, due camere da letto, due bagni, cucina, ampio balcone e ripostiglio. Opportunità unica
LEGGI ANCORA
- prezzo medio appartamento in zona Vico : 1635 €/m²
- prezzo medio appartamento a Edolo : 1626 €/m²
PIAZZALE SIENA / VIA PISANELLO
appartamento Vico 545.000 €
Vendita Appartamento PIAZZALE SIENA / VIA PISANELLO A due passi da Piazzale Siena, Via Pisanello 18/20, vendiamo in un palazzo completamente riqualificato dal punto di vista energetico e ristrutturato integralmente nelle parti comuni, ottavo piano, appartamento di mq 110. Lo stato di fatto dell''appartam […]
LEGGI ANCORA
- prezzo medio appartamento in zona Vico : 1635 €/m²
- prezzo medio appartamento a Edolo : 1626 €/m²
Appartamento in Via Fortezza
appartamento Vico 195.000 €
Milano-via Fortezza: Dama RE propone in vendita bilocale in zona Villa San Giovanni. Fortezza Milano: la tua nuova casa IL QUARTIERE DI UNA VOLTA, LA TUA CASA DEL FUTURO Milano-via Fortezza: Dama RE propone in vendita bilocale in zona Villa San Giovanni. Fortezza Milano: la tua nuova casa IL QUARTIERE DI […]
LEGGI ANCORA
- prezzo medio appartamento in zona Vico : 1635 €/m²
- prezzo medio casa indipendente in zona Vico : 1531 €/m²
Non perdere gli altri centinaia di annunci!






