N.B. Tutti le informazioni immobiliari sono fornite senza alcuna garanzia. Leggi il disclaimer.
Appartamenti, di nuova costruzione in vendita a Corteno Golgi in zona Sant'Antonio
MODIFICA QUESTA RICERCAVilla singola in vendita a Corteno Golgi via 4 Novembre PREMIUM
in tranquillo paese a cinque chilometri da Aprica, elegante zona residenziale, con tutti i confort, vendesi splendida villa, in perfetto stile montano pietra-legno, composto di zona giorno con cucina abitabile e stanza da bagno al piano ter […]
LEGGI ANCORA
- prezzo medio casa indipendente in zona OMI D1 : 1235 €/m²
- prezzo medio casa indipendente a Corteno Golgi : 1309 €/m²
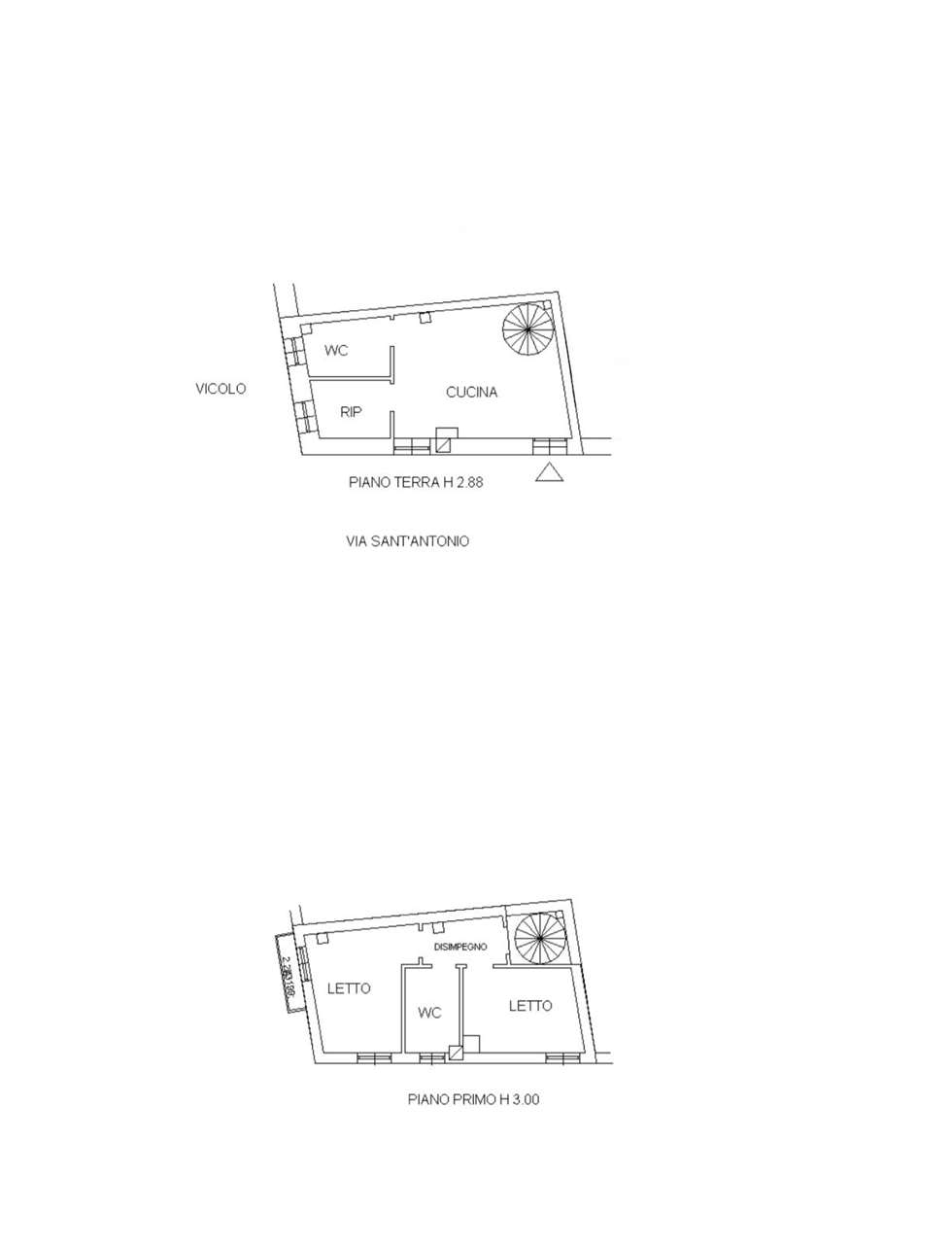
appartamento in vendita a Corteno Golgi in zona Sant'Antonio
appartamento Sant'Antonio 159.000 €
Casa Indipendente a Corteno Golgi: Un Rifugio Montano da Scoprire** Scopri questa incantevole porzione di casa indipendente situata nel pittoresco nucleo montano di Sant'Antonio, a pochi minuti dal Passo dell'Aprica. Immersa nella natura della Valle di Campovecchio, a un'altitudine di 1100 metri, questa […]
LEGGI ANCORA
- prezzo medio casa indipendente in zona OMI R1 : 1438 €/m²
- prezzo medio casa semindipendente in zona OMI R1 : 1338 €/m²
Medicina - S. Antonio - Appartamento con garage e giardino
appartamento Sant'Antonio 115.000 €
Medicina (BO) Loc. S. Antonio - In piccola palazzina, Appartamento composto da ingresso, soggiorno, cucina, 2 camere, bagno, 2 balconi, Ampio Garage (mq 30 c.a.). Completa la proprietà un Giardino privato con sovrastante Cantina/Magazzino. Riscaldamento Autonomo con caldaia nuova. Basse spese di gestione […]
LEGGI ANCORA
- prezzo medio appartamento in zona Sant'Antonio : 1721 €/m²
- prezzo medio appartamento a Corteno Golgi : 1633 €/m²


