N.B. Tutti le informazioni immobiliari sono fornite senza alcuna garanzia. Leggi il disclaimer.
Appartamenti in vendita a Corteno Golgi in zona Sant'Antonio
MODIFICA QUESTA RICERCAVendesi appartamento a Corteno Golgi via Camillo Golgi, 116 PREMIUM
- prezzo medio appartamento in zona OMI B1 : 1425 €/m²
- prezzo medio appartamento a Corteno Golgi : 1456 €/m²
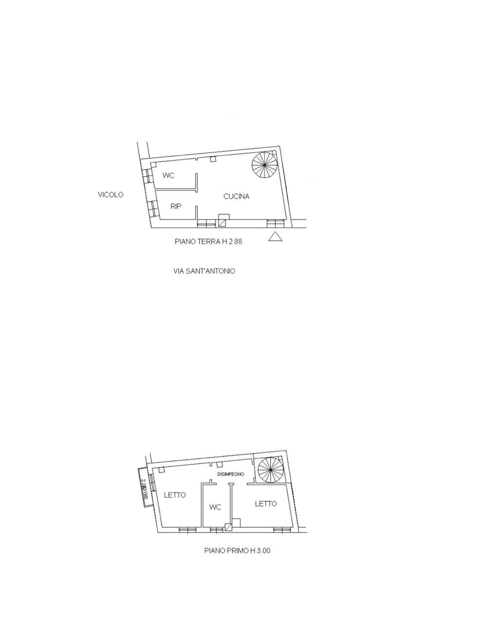
Terratetto caposchiera in vendita a Siniscola – Via Sant’Antonio
con terrazza
con balcone
angolo cottura
appartamento Sant'Antonio 60.000 €
SINISCOLA A Siniscola, in Via SantAntonio, proponiamo in vendita un terratetto caposchiera disposto su due livelli, ideale per chi desidera una soluzione indipendente nel centro abitato, da ristrutturare secondo il proprio gusto e le proprie esigenze. Al piano terra limmobile è composto da un soggiorno-p […]
LEGGI ANCORA
- prezzo medio casa indipendente in zona Sant'Antonio : 1301 €/m²
- prezzo medio appartamento in zona Sant'Antonio : 1362 €/m²
PG.1 DI 1

