N.B. Tutti le informazioni immobiliari sono fornite senza alcuna garanzia. Leggi il disclaimer.
Negozi, di recente ristrutturazione in vendita a Brescia in zona Crocifissa di Rosa
MODIFICA QUESTA RICERCAImmobile in vendita a Brescia(BS PREMIUM
Attività / Licenza in vendita a Brescia(BS
Proposto da:
negozio Villaggio Prealpino 180.000 €
Attività commerciale - Occasione Unica: Cedesi Prestigiosa Attività di Bar Caffetteria Gelateria Un’opportunità ideale per chi cerca un business chiavi in mano, caratterizzato da standard qualitativi elevatissimi e ottimi
LEGGI ANCORA
Attività / Licenza in vendita a Brescia(BS
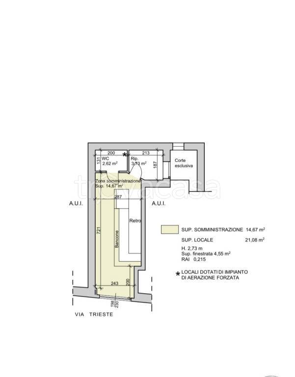
negozio Centro Storico Via Trieste 50.000 €
Attività commerciale - VENDESI PUB-RISTORANTE A BRESCIA - CENTRO STORICO Ci sono posti che costruiscono la propria identità mattone per mattone, serata dopo serata. La Fabbrica di Via Trieste è uno di questi. Un luogo che
LEGGI ANCORA
Attività / Licenza in vendita a Brescia(BS
negozio in vendita a Brescia in zona Crocifissa di Rosa
negozio Crocifissa di Rosa via Crocifissa di Rosa 15.000 €
Zona Via Crocifissa di Rosa, fronte strada in concomità con altre attività commerciali, cedesi attività di locale bar con 1 vetrina e servizio. Completamente ristrutturato. Arredo nuovo. Plateatico esterno. Maggiori informazioni privatamente. Euro 15.000. Per info 331/5297391
LEGGI ANCORA
Immobile in vendita a Brescia(BS
negozio Centro Storico Corso Palestro 79.000 €
Attività commerciale - Esplora le potenzialità di questo straordinario spazio commerciale situato nel cuore di Brescia, Corso Palestro! Con due piani a tua disposizione, questo negozio offre un'accattivante vetrina al pian
LEGGI ANCORA
Negozio in vendita a Brescia via Trento 80, Via Veneto - Borgo Trento
negozio Borgo Trento via Trento 140.000 €
Brescia, zona nord, VIA TRENTO, in ottima posizione, proponiamo la vendita di un NEGOZIO con ampio retro e laboratorio. Il negozio è posizionato lungo una gradevole via di Borgo Trento, un tempo dotato di opifici, ora popolata da una ricca vita sociale e commerciale. Il negozio, GIA' LIBERO, ha una metra […]
LEGGI ANCORA
Garage - Posto auto in vendita a Brescia
Negozio in vendita a Brescia via Montello, 15, Via Veneto - Borgo Trento
Proposto da:
negozio Borgo Trento Via Montello 155.000 €
Situato a Brescia, Via Montello questo negozio in vendita rappresenta un’opportunità commerciale di rilievo. La posizione è una delle sue leve principali: forte passaggio, zona molto servita e vicinanza alle scuole, condizioni ideali per attirare traffico pedonale e clientela locale. L’immobile è indicat […]
LEGGI ANCORA
Locale commerciale - Negozio a Brescia
negozio Centro Storico Corso Palestro 79.000 €
Esplora le potenzialità di questo straordinario spazio commerciale situato nel cuore di Brescia, Corso Palestro! Con due piani a tua disposizione, questo negozio offre un'accattivante vetrina al piano terra, perfetta per mettere in mostra i tuoi prodotti o servizi. Ma le sorprese non finiscono qui: con u […]
LEGGI ANCORA
- prezzo medio locale commerciale in zona Centro Storico : 1156 €/m²
- prezzo medio locale commerciale a Brescia : 1018 €/m²
Vendesi negozio a Brescia via Galileo Galilei, Crocifissa di Rosa
negozio Crocifissa di Rosa 95.000 €
Negozio/Ufficio con Vetrina – Recentemente Ristrutturato e Bassi Costi di Gestione Proponiamo in vendita un luminoso locale commerciale di circa 50 mq, situato al piano terra in una posizione strategica e di forte passaggio, affiancato da altre attività consolidate. L’immobile, perfetto sia come negozio […]
LEGGI ANCORA
Ristorante in vendita a Brescia, Oberdan
negozio San Bartolomeo Via Guglielmo Oberdan 550.000 €
Il gusto dei Fast Food americani nel cuore di Brescia - Il rinomato America Graffiti di Via Oberdan è in vendita Vendesi “America Graffiti”, hamburgheria in stile americano situata nel cuore di Brescia, in Via Oberdan, una delle vie più frequentate e strategiche della città. Non un semplice fast food, ma […]
LEGGI ANCORA
Negozio in Vendita a Brescia Centro Storico
negozio Centro Storico
L 'agenzia GS Immobiliare propone in vendita un prestigioso locale commerciale situato in Galleria Dante, nel centro storico di Brescia. Questo immobile, collocato all 'interno di una galleria vivace e caratterizzata da un 'ampia varietà di negozi e attività , gode di una posizione strategica a pochi pa […]
LEGGI ANCORA
Immobile in vendita a Brescia(BS
Garage - Posto auto in vendita a Brescia
negozio Centro Storico
Lombardia Immobili d'Impresa propone in vendita posto auto automatizzato all'interno di autorimessa a pochi metri dal museo Santa Giulia, nel centro storico della città Antica di Brescia. Il posto auto proposto è il numero 8, e si trova sopra un altro; ci si accede tramite sistema automatizzato. Ha una p […]
LEGGI ANCORA
Garage in vendita a Brescia
negozio Fiumicello
BRESCIA-FIUMICELLO Se cerchi la soluzione definitiva per la tua mobilità e l'ottimizzazione degli spazi, questo immobile è ciò che fa per te. L’ampia metratura lo rende perfetto non solo per il ricovero dell'auto, ma anche per chi desidera un’area extra ideale per l'organizzazione domestica e lo stoccagg […]
LEGGI ANCORA
Immobile in vendita a Brescia(BS PREMIUM
negozio in vendita a Brescia
negozio
CHIOSCO COMMERCIALE POSIZIONATO DAVANTI ALL'ENTRATA DELL'OSPEDALE CIVILE A BRESCIA!!! OCCASIONE UNICA, POSSIBILITA' DI SVOLGERE QUALSIASI TIPO DI ATTIVITA', SIA CON COMMERCIO DI PRODOTTI ALIMENTARI, MA ANCHE NON ALIMENTARI. QUINDI, SI PASSA DALLA VENDITA DI PIZZA AL TAGLIO O PANINI ALLA VENDITA DI FRUTTA […]
LEGGI ANCORA
negozio in vendita a Brescia
negozio Crocifissa di Rosa via Crocifissa di Rosa 84.000 €
VIA CROCIFISSA DI ROSA - BRESCIA. In palazzina totalmente appena ristrutturata esternamente proponiamo NEGOZIO di Mq 45 VETRINATO FRONTESTRADA (Piano Terra Mq 30 + Piano Seminterrato Mq 15 con antibagno e bagno) + TERRAZZA di Mq 30 DI PROPRIETA' ESCLUSIVA. RENDITA DEL 8% - Locato ad Euro 550/mese (+ spes […]
LEGGI ANCORA
Negozio - 2 Vani a Zona Ospedale, Brescia
Proposto da:
negozio Via Attilio Tosoni 89.000 €
Brescia - Via Tosoni | OTTIMO INVESTIMENTO A REDDITO (7%) In posizione strategica di fortissimo passaggio veicolare, a pochi passi dalle fermate della Metropolitana Marconi e Ospedale, proponiamo negozio fronte strada completamente ristrutturato, ideale per investitori alla ricerca di una rendita immedia […]
LEGGI ANCORA
Non perdere gli altri 242 annunci!











