N.B. Tutti le informazioni immobiliari sono fornite senza alcuna garanzia. Leggi il disclaimer.
Locali commerciali in vendita a Subbiano in zona Castelnuovo
MODIFICA QUESTA RICERCAVilla singola in vendita a Subbiano PREMIUM
- prezzo medio casa indipendente in zona OMI R1 : 1218 €/m²
- prezzo medio villa in zona OMI R1 : 1402 €/m²
Immobile in vendita a Subbiano(AR
Immobile in vendita a Subbiano(AR
locale di sgombero in vendita a Subbiano in zona Castelnuovo
locale commerciale Castelnuovo 150.000 €
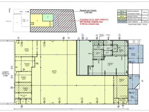
Locale Commerciale con Ampio Magazzino – Castelnuovo Subbiano In posizione strategica ad altissima visibilità, proponiamo un immobile commerciale ideale per attività che richiedono alta visibilità e comodità di facile accesso e parcheggio per i clienti
LEGGI ANCORA
Capannone industriale in vendita a Castelnuovo, Subbiano
locale commerciale Castelnuovo
Scopri un'opportunità unica nel cuore della zona industriale di Castelnuovo! Capannone di circa 800 mq, perfetto per attività artigianali e industriali. L'immobile posto al primo piano servito da scale e rampa di carico, ha una superficie di circa 450 mq dedicati all'uso orafo e ulteriori 350mq attualmen […]
LEGGI ANCORA


