N.B. Tutti le informazioni immobiliari sono fornite senza alcuna garanzia. Leggi il disclaimer.
Terreni agricoli o terreni edificabili in asta giudiziaria e con giardino, di nuova costruzione in vendita a Arezzo in zona San Zeno
MODIFICA QUESTA RICERCATerreno in vendita a Arezzo
terreno agricolo San Zeno
San Zeno , zona Piscinale: Vendesi ampio terreno agricolo ,ca. 5.000 mq recintato , con cancello e comodo accesso. Dotato di pozzo , corrente elettrica . Doppio ingresso. A fronte di terreno agricolo , si può costruire una casina di legno di mq.30 Due particelle distinte , un appezzamento di mq 1190 con […]
LEGGI ANCORA
TERRENO AGRICOLO in VENDITA a AREZZO ZONA SAN ZENO / SANT'ANDREA A PIGLI
terreno agricolo San Zeno
San Zeno , zona Piscinale: Vendesi ampio terreno agricolo ,ca. 5.000 mq recintato , con cancello e comodo accesso. Dotato di pozzo , corrente elettrica . Doppio ingresso. A fronte di terreno agricolo , si può costruire una casina di legno di mq.30 Due particelle distinte , un appezzamento di mq 1190 con […]
LEGGI ANCORA
Terreno agricolo in vendita a Arezzo
Terreno in vendita a Arezzo(AR
Vendesi villa a schiera ad Arezzo, San Zeno
terreno edificabile San Zeno
VILLETA A SCHIERA disposta su 2 piani recente costruzione come nuova. Al piano terra. SOGGIORNO-ANGOLO COTTURA, BAGNO con piccolo giardino sul retro. AL PRIMO PIANO: 2 CAMERE DA LETTO , BAGNO. GRANDL'agenzia immobiliare Parreschi da oltre 10 anni opera ad Arezzo e provincia. Effettua servizi immobiliari […]
LEGGI ANCORA
Appartamento in vendita ad Arezzo, Centro citt PREMIUM
Proposto da:
- prezzo medio appartamento in zona OMI C6 : 2624 €/m²
- prezzo medio quadrivano in zona OMI C6 : 2847 €/m²
Terreno agricolo in vendita ad Arezzo, Agazzi
terreno agricolo Agazzi
Sulla collina di Agazzi, in una posizione tranquilla e molto panoramica si vende un terreno agricolo di circa 8.000 mq, in gran parte coltivato a oliveto. All’interno della proprietà è presente un fabbricato su due livelli di circa 90 mq catastali completamente da ristrutturare ideale per chi desidera cr […]
LEGGI ANCORA
Villa a schiera in san zeno strada c, Arezzo San Zeno di 7 m
terreno edificabile San Zeno
VILLETA A SCHIERA disposta su 2 piani recente costruzione come nuova. Al piano terra. SOGGIORNO-ANGOLO COTTURA, BAGNO con piccolo giardino sul retro. AL PRIMO PIANO: 2 CAMERE DA LETTO , BAGNO. GRANDL'agenzia immobiliare Parreschi da oltre 10 anni opera ad Arezzo e provincia. Effettua servizi immobiliari […]
LEGGI ANCORA
Terreno in vendita a Arezzo(AR
Terreno agricolo in vendita ad Arezzo, San Zeno
terreno agricolo San Zeno
Riferimento:4439287 Localita' San Zeno, 52100 Arezzo Arezzo Lotto di terreno di superficie catastale complessiva di mq. 13.674 circa in località San Zeno nel Comune di Arezzo, lungo la SS73 Senese Aretina da un lato e la E78 Fano – Grosseto dall’altro Data di vendita30/10/2025 Offerta minima81.910 € La d […]
LEGGI ANCORA
Terreno agricolo in vendita ad Arezzo, San Zeno
terreno agricolo San Zeno
Arezzo (AR) [SY387917] 52100 San Zeno AR, Italia RGE 32/2018 - 2 Lotto di terreno di superficie catastale complessiva di mq. 13.674 circa in località San Zeno nel Comune di Arezzo, lungo la SS73 Senese Aretina da un lato e la E78 Fano – Grosseto dall’altro; sui lati corti l’area è delimitata da altre dit […]
LEGGI ANCORA
Casale in vendita ad Arezzo, Molin Nuovo PREMIUM
- prezzo medio casa indipendente in zona Molin Nuovo : 1475 €/m²
- prezzo medio casa indipendente ad Arezzo : 1840 €/m²
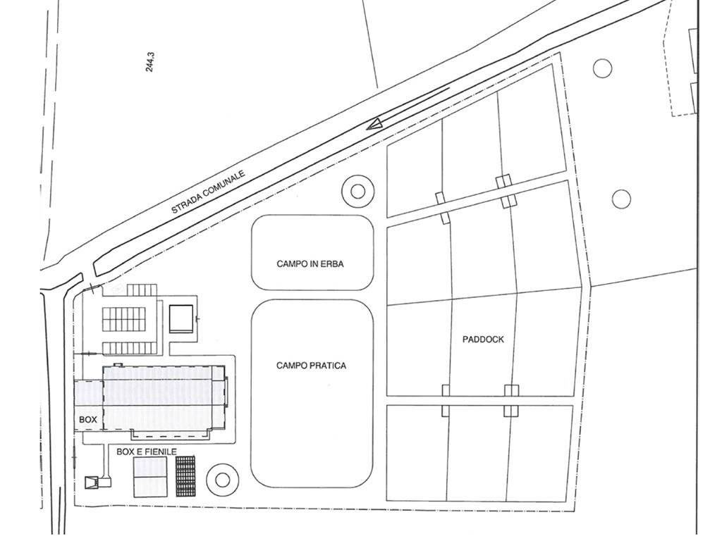
Immobile in asta di 13674 m in vendita a Arezzo
terreno agricolo San Zeno
Riferimento:4439287 Localita' San Zeno, 52100 Arezzo Arezzo Lotto di terreno di superficie catastale complessiva di mq. 13.674 circa in localit San Zeno nel Comune di Arezzo, lungo la SS73 Senese Aretina da un lato e la E78 Fano – Grosseto dall’altro Data di vendita30/10/2025 Offerta minima81.910 € La da […]
LEGGI ANCORA
Appartamento in vendita ad Arezzo, Olmo
terreno edificabile Olmo 96.000 €
Arezzo (AR) [SY594130] Ripa di Olmo, 52100 Arezzo AR, Italia RIF. 165/2024 Lotto: 7 Appartamento composto da ingresso, soggiorno/cucina, servizio igienico, camera, cucina, sottotetto, loggia e terrazza al piano secondo oltre a box auto al piano interrato. Possibilità di acquisto immobiliare prima dell'as […]
LEGGI ANCORA
- prezzo medio appartamento in zona OMI D65 : 1332 €/m²
- prezzo medio casa indipendente in zona OMI D65 : 1225 €/m²






