Agenzia immobiliare a Torino
Evob real estate srl - pagina 2 di 6

Non ancora verificata da Caasa®
E' la tua agenzia?
Annunci dell'agenzia

Se stai cercando il locale giusto per la tua attività, abbiamo la soluzione perfetta per te! In Via San Martino 9, nel cuore del centro storico di Moncalieri, proponiamo locale commerciale ristrutt…

Se stai cercando il locale giusto per la tua attività, abbiamo la soluzione perfetta per te! In Via San Martino 9, nel cuore del centro storico di Moncalieri, proponiamo locale commerciale ristrutt…

Proponiamo in vendita locale ad uso produttivo (cat. D/7) a Rivoli in Corso Primo Levi 23 situato al 2° piano di un palazzo con ascensore. La superficie è suddivisa in 6 vani già pronti all’uso: in…

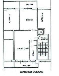
Sei alla ricerca di una casa spaziosa con spazi esterni, indipendenza e comodità di un grande box? Questa è la soluzione giusta per te! Proponiamo in vendita soluzione semi-indipendente libera su 2…

EVOB Real Estate propone in vendita locale commerciale di 80 mq posizione privilegiata in zona Parella, Pozzo Strada. Questa soluzione un ottima occasione per investitori. Il locale si presta perfe…

EVOB REAL ESTATE presenta in esclusiva un appartamento di prestigio situato in Via Lagrange, una delle strade pi eleganti e ricercate di Torino. Nel cuore pulsante del Centro Storico, tra boutique …

EVOB Real Estate propone in vendita luminoso bilocale in fase di completa ristrutturazione, caratterizzato da ambienti armoniosi e finiture curate nei minimi dettagli. L'ingresso si apre su un como…

Evob Real Estate propone in vendita un bilocale che unisce funzionalità e comfor, in un contesto comodo e ben servito. L'ingresso si apre su disimpegno, studiato per separare con eleganza le varie …