Agenzia immobiliare a Ascoli Piceno
Immobiliare Centro Servizi Ascoli - pagina 56 di 81
DATI SOCIALI
Contatti
Non ancora verificata da Caasa®
E' la tua agenzia?
Annunci dell'agenzia
Ascoli Piceno, Monterocco, in villa con giardino e piscina si affitta bilocale con ingresso indipendente completamente ammobiliata, composta da ingresso su soggiorno con angolo cucina, una camera, …
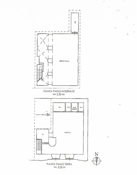
CAMPO PARIGNANO. Ufficio di 60 mq circa completamente ristrutturato così composto due ampie stanze un ripostiglio e un bagno.L'immobile è in ottime condizioni
Ascoli Piceno, corso Mazzini, nelle immediate vicinanze di piazza del popolo, ad elevatissimo transito veicolare e pedonale, locale commerciale su due livelli di mq. 180 circa, sito al piano terra,…
Ascoli Piceno, in posizione centralissima a pochi passi da Piazza del Popolo, appartamento di mq 70 circa ammobiliato con ascensore, cosl composto: ingresso/soggiorno con angolo cottura, camera mat…
Ascoli Piceno, centro storico, splendido e caratteristico locale con volte reali di mq 120 circa, possibilit` di soppalcare una parte del locale, ideale per ristorante/pizzeria o pub. Possibilit` d…
Locale commerciale - ASCOLI PICENO intera palazzina in zona artigianale. L'immobile è disposto su tre piani: al piano seminterrato vi è ampio spazio per magazzino di mq circa 340; al piano terra la…
Ascoli Piceno, zona centralissima, nei pressi di Piazza del Popolo, con elevatissimo transito pedonale, affittasi locale commerciale di mq. 37 circa, oltre piano sottostrada di mq 18 circa, sito al…
Campli (TE), appartamento di mq 65 di nuova costruzione, posto al piano secondo cosl composto: ingresso/soggiorno, cucina abitabile, camera matrimoniale, cameretta e bagno



