Valutazione immobiliare indipendente, accurata e gratuita
Locale commerciale in vendita a Giulianova a 550.000 € (cod.653687a0)
Caasa non ha sufficienti informazioni per commentare il locale commerciale in vendita a Giulianova - 653687a0.
Analisi immobiliare
I dati in posseso di Caasa per quest'immobile sono insufficienti, inaffidabili o contraddittori per proporre un'analisi attendibile.
Mercato immobiliare a Giulianova
Per quanto riguarda più in generale la città di Giulianova, sono presenti al momento più di cinquanta annunci per
locali commerciali in vendita (quasi il 20% dell'intera provincia)
e il maggior numero di annunci per questa tipologia sono relativi alla zona di Colleranesco.
Per quanto riguarda la dinamica dei prezzi, negli ultimi 6 mesi i prezzi medi in tutta la città per locali commerciali in vendita sono
in leggera diminuzione (-2,94%).
NOVITÀ Il risultato che vedi dipende dai dati che siamo riusciti ad estrarre dall'annuncio: ottieni una stima più accuranta di questo immobile, inserendo dati più precisi.
N.B. L'Opinione di Caasa® è un servizio sperimentale realizzato tramite tecniche di Intelligenza Artificiale, fornito senza alcuna garanzia di correttezza e completezza. Leggi il disclaimer o segnalaci un problema.
IMMAGINI
IN SINTESI
PROPOSTO DA:
Immobiliare CarpeDiem
DESCRIZIONE
di nuova costruzione di nuova costruzione con termocondizionamento con riscaldamento autonomo con climatizzazione
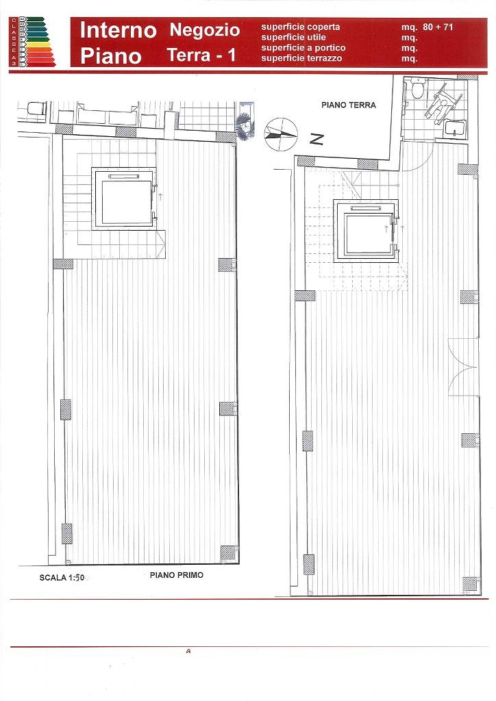
Giulianova Lido - Nel cuore del Lido di Giulianova, nella zona commerciale di maggiore importanza, proponiamo in vendita locale commerciale di nuova costruzione. I locali disposti al piano terra e piano sovrastante sono posizionati ad angolo e quindi godono di una visibilit importante, grazie anche alle enormi vetrate. Si prestono, ovviamente, a qualsiasi attivit commerciale e terziarie. Ottime le finiture, vetrine antisfondamento di ultima generazione, locali climatizzati. collegamento fra i due piani tramite montacarichi interno, oltre a ampio vano scala, due bagni. Palazzina in classe "A3". Possibilit di vendita frazionata per piano.. Il presente annuncio non costituisce vincolo contrattuale. Alcune immagin della costruzione non corrispondono alla realt e quindi sono puramente indicative. Per informazioni dettagliate o visone diretta rivolgersi all'agenzia Immobiliare Zuccarini al n. 0861-1950507 - SC9557885



