Valutazione immobiliare indipendente, accurata e gratuita
L'Opinione di Caasa® per l'appartamento in vendita a Giulianova a 223.000 € (cod.650bf607)
Secondo Caasa, per l'appartamento in vendita a Giulianova, la richiesta di 223.000 € è equilibrata rispetto agli annunci simili.
Analisi immobiliare
L'appartamento è proposto in vendita a
223.000 € per una
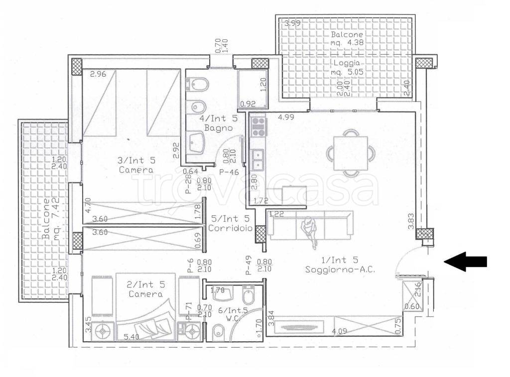
superficie commerciale di
88 m² e quindi ad un prezzo per metro quadrato pari a
2534 €/m²
.
Tale valore
è molto vicino a quello stimato da Caasa per immobili in vendita simili per tipologia e caratteristiche, che è compreso tra
2.573 €/m² e
2.949 €/m².
E' stato possibile utilizzare in raffronto i soli valori medi cittadini per appartamenti (da 1.430 €/m² a 2.890 €/m²) e per trivani (da 1.550 €/m² a 3.560 €/m²). Caasa non è stata infatti in grado di determinare in modo affidabile la posizione né la classe energetica dell'immobile. Ad affinare la stima hanno contribuito però anche lo stato dell'immobile (di nuova costruzione) e la presenza di alcune caratteristiche significative come il posto auto. In virtù di queste considerazioni i valori considerati accettabili per l'offerta economica devono costituire un intervallo adeguatamente ampio.
Mercato immobiliare a Giulianova
Per quanto riguarda più in generale la città di Giulianova, sono presenti al momento più di 300 annunci per
appartamenti in vendita (meno del 10% dell'intera provincia) .
La dinamica dei prezzi in tutta la città mostra che negli ultimi 6 mesi, i prezzi per appartamenti in vendita sono
in aumento (+3,66%).
NOVITÀ Il risultato che vedi dipende dai dati che siamo riusciti ad estrarre dall'annuncio: ottieni una stima più accuranta di questo immobile, inserendo dati più precisi.
N.B. L'Opinione di Caasa® è un servizio sperimentale realizzato tramite tecniche di Intelligenza Artificiale, fornito senza alcuna garanzia di correttezza e completezza. Leggi il disclaimer o segnalaci un problema.
IMMAGINI
IN SINTESI
DESCRIZIONE
di nuova costruzione con posto auto con terrazza con termocondizionamento di nuova costruzione con angolo cottura
Proponiamo appartamento in corso di realizzazione composto da ampio soggiorno con angolo cottura con terrazza loggiata a servizio, 2 camere matrimoniali e 2 bagni. Le finiture sono di alta qualità, con riscaldamento a pavimento e isolamento termico per garantire il massimo comfort, mentre l'impianto fotovoltaico condominiale aggiunge ulteriori vantaggi ecologici ed economici. Ampie possibilità di personalizzazione. Disponibili box auto da acquistare a parte. Consegna estate 2026


