Valutazione immobiliare indipendente, accurata e gratuita
Casa indipendente in vendita a Civitella del Tronto a 44.250 € (cod.65712d8d)
Caasa non ha sufficienti informazioni per commentare la casa indipendente a Civitella del Tronto - 65712d8d.
Analisi immobiliare
I dati in posseso di Caasa per quest'immobile sono insufficienti, inaffidabili o contraddittori per proporre un'analisi attendibile.
Mercato immobiliare a Civitella del Tronto
Per quanto riguarda più in generale il comune di Civitella del Tronto, sono presenti al momento più di 150 annunci per
case indipendenti in vendita (meno del 5% dell'intera provincia) .
Relativamente alla dinamica dei prezzi, possiamo dire che negli ultimi 6 mesi i prezzi medi in tutto il comune per case indipendenti in vendita sono
in aumento (+4,05%).
NOVITÀ Il risultato che vedi dipende dai dati che siamo riusciti ad estrarre dall'annuncio: ottieni una stima più accuranta di questo immobile, inserendo dati più precisi.
N.B. L'Opinione di Caasa® è un servizio sperimentale realizzato tramite tecniche di Intelligenza Artificiale, fornito senza alcuna garanzia di correttezza e completezza. Leggi il disclaimer o segnalaci un problema.
IMMAGINI
IN SINTESI
PROPOSTO DA:
Immobili all'Asta
DESCRIZIONE
da ristrutturare con posto auto con giardino con garage da ristrutturare con terrazza con balcone in asta giudiziaria senza ascensore
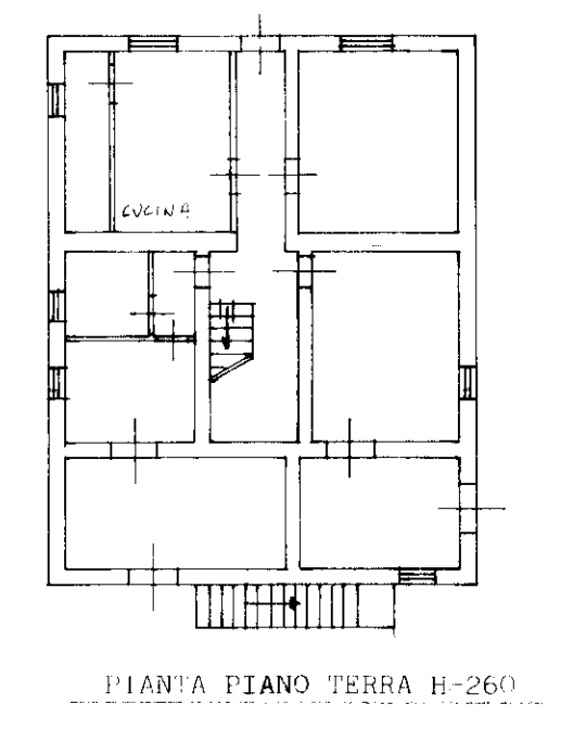
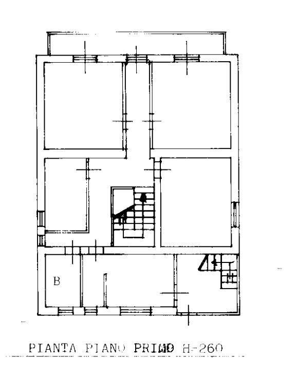
CASA SINGOLA ALL'ASTA IN VIALE VIBRATA, CIVITELLA DEL TRONTO (TE) Si propone il diritto di piena proprietà di un'unità immobiliare ad uso residenziale sita in Viale Vibrata n 12, nel comune di Civitella Del Tronto (TE). Nello specifico si tratta di una casa singola elevata su due piani, composta così: Piano Terra: - ingresso/disimpegno, - soggiorno, - cucina e retro, - bagno - due camere - due vani pluriuso. Piano Primo: - scala interna - tre camere, - disimpegno, - bagno - locali pluriuso - balcone. L'immobile viene completato da un area di cortilizia e un garage al piano terra. La superficie commerciale del immobiel è di mq 290 DATI CATASTALI: - Foglio 19, p.lla 54, categoria A/3, classe 4, consistenza 11,5 vani; rendita € 504,84, piani T-1 CHI SIAMO Immobiliallasta.it aiuta le persone a comprare casa all'asta e migliorare la qualità della loro vita senza correre rischi, grazie ad una piattaforma specializzata in aste immobiliari sviluppata intorno alle vere esigenze di chi cerca casa all'asta e ad un team di 30 professionisti esperti dedicato, che ti guida passo passo in un acquisto sicuro e certificato da una tripla garanzia sull'immobile e sul servizio. A differenza delle agenzie troverai: + Varietà: gestiamo migliaia di immobili ogni mese + Tranquillità: tripla garanzia che ti tutela da ogni rischio sull'acquisto Alcuni risultati oggettivi nell'ultimo anno e mezzo: - 8.600 immobili gestiti - +500 clienti portati all'asta - +200 case aggiudicate, per un valore totale di 15 milioni Contattaci subito per parlare con uno dei nostri consulenti che ti aiuterà a trovare la tua casa all'asta senza correre rischi


