Valutazione immobiliare indipendente, accurata e gratuita
L'Opinione di Caasa® per l'appartamento in vendita ad Alba Adriatica a 235.000 € (cod.64724d54)
Secondo Caasa, per l'appartamento in vendita ad Alba Adriatica, la richiesta di 235.000 € è leggermente svantaggiosa rispetto agli annunci simili.
Analisi immobiliare
L'appartamento, situato nella zona OMI B4, è proposto in vendita a
235.000 € per una
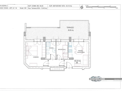
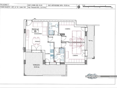
superficie commerciale di
76 m² e quindi ad un prezzo per metro quadrato pari a
3092 €/m²
.
Questo valore
è un po' più alto di quello stimato da Caasa per immobili in vendita simili per tipologia, caratteristiche, classe energetica e zona, che è compreso tra
2.624 €/m² e
2.854 €/m².
Considerata la posizione dell'appartamento si sono utilizzati in raffronto i valori medi nelle zone limitrofe . Ad affinare la stima ha contribuito anche la classe energetica (A) oltre alla conoscenza dello stato dell'immobile (di nuova costruzione) e di alcune caratteristiche significative come il garage o la disponibilità di una cantina. In virtù di queste considerazioni è possibile ottenere un intervallo di valori accettabili per l'offerta relativamente limitato.
Mercato immobiliare ad Alba Adriatica
Per quanto riguarda più in generale il comune di Alba Adriatica, sono presenti al momento oltre 500 annunci per
appartamenti in vendita (quasi il 20% dell'intera provincia) .
Per quanto riguarda la dinamica dei prezzi, negli ultimi 6 mesi i prezzi medi in tutto il comune per appartamenti in vendita sono
in deciso aumento (+8,86%).
NOVITÀ Il risultato che vedi dipende dai dati che siamo riusciti ad estrarre dall'annuncio: ottieni una stima più accuranta di questo immobile, inserendo dati più precisi.
N.B. L'Opinione di Caasa® è un servizio sperimentale realizzato tramite tecniche di Intelligenza Artificiale, fornito senza alcuna garanzia di correttezza e completezza. Leggi il disclaimer o segnalaci un problema.
IMMAGINI
IN SINTESI
PROPOSTO DA:
Abruzzo House AP
DESCRIZIONE
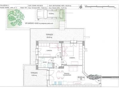
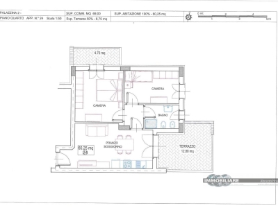
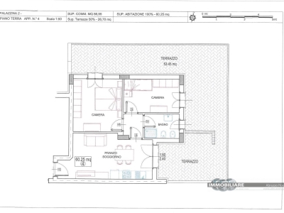
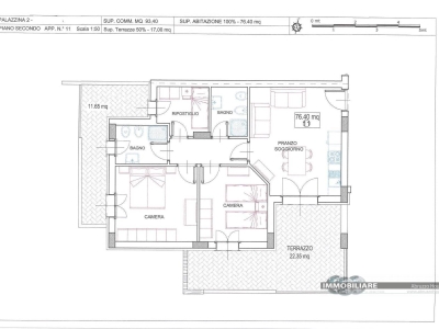
di nuova costruzione con posto auto con angolo cottura con garage con cantina con giardino
Appartamento ad uso residenziale di comoda metratura in vendita ad Alba Adriatica in zona centralissima. L' appartamento in una elegante palazzina in fase di realizzazione a circa 400 metri dal mare sito al piano terra, ha una metratura di circa 76 mq ed è composto da ingresso su soggiorno con angolo cottura, due camere da letto, studio o cameretta, due bagni con doccia, terrazzi di circa 30 mq e giardino di circa 51 mq. La palazzina sarà realizzata con attenzione al risparmio energetico e sarà dotata di struttura antisismica e cappotto termico. Gli appartamenti saranno dotati tra l'altro di Climatizzazione invernale ed estiva ad aria (multisplit) e produzione acqua calda sanitaria con accumulo mediante sistema a pompa di calore tutto in uno ad alta efficienza, impianto fotovoltaico condominiale, infissi in pvc con vetro termico antinfortunistico, tapparelle elettriche, video citofono, portone blindato ecc... Possibilità di acquistare garage, posto auto o cantina. Disponibili varie tipologie e piani. Palazzina sita a pochi passi dai principali servizi quali supermercati, scuole, parchi giochi, centro benessere, bar ecc.. Ottima soluzione con finiture di pregio. ++. Consegna fine 2026. Ulteriori proposte sul sito www.abruzzohouse.biz. Potete contattarci senza impegno per ottenere maggiori informazioni e per prenotare una visita per questo appartamento al 366.1924351. Siamo disponibili anche la Domenica su appuntamento

