Valutazione immobiliare indipendente, accurata e gratuita
Casa indipendente in vendita a Pescara in zona Ospedale a 259.000 € (cod.659f1432)
Caasa non ha sufficienti informazioni per commentare la casa indipendente a Pescara in zona Ospedale - 659f1432.
Analisi immobiliare
I dati in posseso di Caasa per quest'immobile sono insufficienti, inaffidabili o contraddittori per proporre un'analisi attendibile.
Mercato immobiliare a Pescara
Per quanto riguarda più in generale la città di Pescara, sono presenti al momento ben circa mille annunci per
case indipendenti in vendita (meno di un terzo dell'intera provincia)
e il maggior numero di annunci per questa tipologia sono relativi alla zona di Centro Città, mentre nella zona di Ospedale è presente un numero significativamente inferiore di annunci.
La richiesta media nella zona dove sorge la casa indipendente (Ospedale) è pari a
1.545 €/m², di poco superiore al valore della zona San Silvestro che è la più economica della città .
Possiamo inoltre considerare che in tutta la città negli ultimi 6 mesi, i prezzi per case indipendenti in vendita sono
in debole diminuzione (-1,97%).
NOVITÀ Il risultato che vedi dipende dai dati che siamo riusciti ad estrarre dall'annuncio: ottieni una stima più accuranta di questo immobile, inserendo dati più precisi.
N.B. L'Opinione di Caasa® è un servizio sperimentale realizzato tramite tecniche di Intelligenza Artificiale, fornito senza alcuna garanzia di correttezza e completezza. Leggi il disclaimer o segnalaci un problema.
IMMAGINI
IN SINTESI
PROPOSTO DA:
Cosmocasa
DESCRIZIONE
da ristrutturare con posto auto con balcone con giardino da ristrutturare
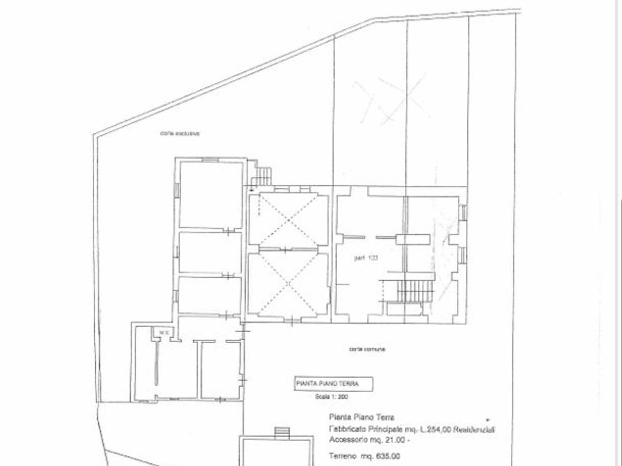
Pescara Colli – Ampia proprietà con terreno e grande potenziale (Rudere) In una delle zone più richieste e panoramiche di Pescara – Colli, proponiamo in vendita intera proprietà indipendente con 635 mq di terreno, ideale per chi desidera realizzare una residenza esclusiva o un investimento immobiliare di valore. L’immobile si sviluppa su due livelli di ampia metratura: Piano Terra: 254 mq Primo Piano: 247 mq Locali accessori: 21 mq Totale coperto: oltre 520 mq Completano la proprietà balconi su più lati e un terreno privato di 635 mq, perfetto per giardino, area relax, piscina o posti auto. ✨ Perché è un’opportunità unica? ✔ Zona residenziale tranquilla e panoramica ✔ Indipendenza totale ✔ Metrature importanti e facilmente personalizzabili ✔ Ideale per villa di prestigio, soluzione bifamiliare o piccolo intervento immobiliare ✔ Grande potenziale di valorizzazione L’immobile è da ristrutturare internamente, offrendo la possibilità di progettare gli spazi secondo le proprie esigenze e sfruttare eventuali agevolazioni fiscali per la riqualificazione. Per informazioni e visite: Luca Camplone – Agenzia Cosmocasa Tel. 085 8124485 Un’occasione rara per chi cerca spazio, indipendenza e una posizione strategica nei Colli di Pescara

