Valutazione immobiliare indipendente, accurata e gratuita
L'Opinione di Caasa® per l'appartamento in vendita a Pescara in zona Stadio a 350.000 € (cod.65118442)
Secondo Caasa, per l'appartamento in vendita a Pescara in zona Stadio, la richiesta di 350.000 € è significativamente svantaggiosa rispetto agli annunci simili.
Analisi immobiliare
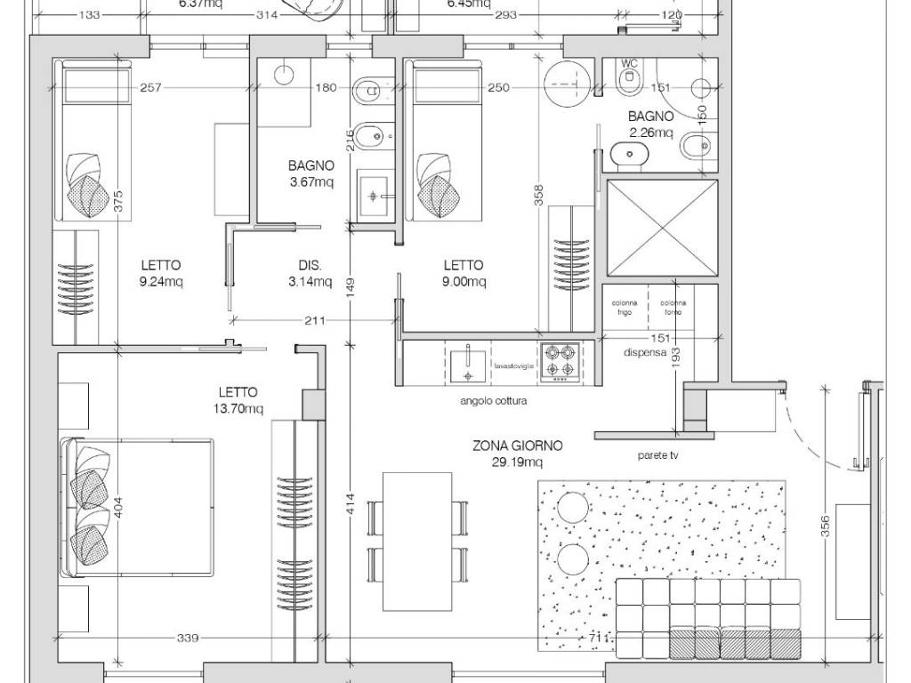
L'appartamento, situato nei pressi di Via Roma nella zona OMI C4, è proposto in vendita (da Immobiliare Eden) a
350.000 € per una
superficie commerciale di
108 m² e quindi ad un prezzo per metro quadrato pari a
3240 €/m²
.
Questo prezzo
è meno vantaggioso di quello stimato da Caasa per immobili in vendita simili per tipologia e caratteristiche e localizzati nella stessa zona OMI, che è compreso tra
2.519 €/m² e
2.758 €/m².
Grazie alla conoscenza con buona approssimazione della localizzazione dell'immobile, è stato possibile utilizzare come raffronto i dati medi elaborati esattamente nella zona OMI di appertenenza (- STAZIONE PE PORTA NUOVA, VIA D`ANNUNZIO, VIA PEPE, STADIO, VIALE PINDARO E ...) per appartamenti (da 1.380 €/m² a 2.585 €/m²) e per attici (da 1.500 €/m² a 2.990 €/m²). Anche se Caasa non è riuscita a determinare la classe energetica, ad affinare la stima hanno contribuito anche lo stato dell'immobile (di nuova costruzione) e la presenza di alcune caratteristiche significative come la disponibilità di una cantina. Per questi motivi l'intervallo dei valori accettabili per l'offerta è relativamente limitato.
Mercato immobiliare a Pescara
Per quanto riguarda più in generale la città di Pescara, sono presenti al momento ben circa 2.000 annunci per
appartamenti in vendita (quasi la metà dell'intera provincia)
e il maggior numero di annunci per questa tipologia sono relativi alla zona di Centro Città, mentre la zona di Stadio risulta molto meno attiva considerando il numero di annunci presenti.
La richiesta media nella zona dove sorge l'appartamento (Stadio pressi Via Roma) è pari a
1.980 €/m², molto vicina ai valori della zona Kennedy che sono i più alti della città .
Possiamo inoltre considerare che in tutta la città negli ultimi 6 mesi, i prezzi per appartamenti in vendita sono
in sostanziale aumento (+5,39%).
NOVITÀ Il risultato che vedi dipende dai dati che siamo riusciti ad estrarre dall'annuncio: ottieni una stima più accuranta di questo immobile, inserendo dati più precisi.
N.B. L'Opinione di Caasa® è un servizio sperimentale realizzato tramite tecniche di Intelligenza Artificiale, fornito senza alcuna garanzia di correttezza e completezza. Leggi il disclaimer o segnalaci un problema.
IMMAGINI
IN SINTESI
DESCRIZIONE
di nuova costruzione con terrazza con cantina di nuova costruzione da ristrutturare
Scopri questo bellissimo attico completamente rinnovato, situato in una zona tranquilla e ben servita. Con una superficie commerciale di 125 m² e 102 m² calpestabili, questo immobile offre un'ampia zona living con cucina a vista, perfetta per accogli […]
