Valutazione immobiliare indipendente, accurata e gratuita
Appartamento in vendita a Città Sant'Angelo a 150.000 € (cod.657266ae)
Caasa non ha sufficienti informazioni per commentare l'appartamento in vendita a Città Sant'Angelo - 657266ae.
Analisi immobiliare
I dati in posseso di Caasa per quest'immobile sono insufficienti, inaffidabili o contraddittori per proporre un'analisi attendibile.
Mercato immobiliare a Città Sant'Angelo
Per quanto riguarda più in generale il comune di Città Sant'Angelo, sono presenti al momento più di 200 annunci per
appartamenti in vendita (meno del 5% dell'intera provincia)
e il maggior numero di annunci per questa tipologia sono relativi alla zona di San Martino.
Possiamo inoltre considerare che in tutto il comune negli ultimi 6 mesi, i prezzi per appartamenti in vendita sono
in leggera diminuzione (-2,38%).
NOVITÀ Il risultato che vedi dipende dai dati che siamo riusciti ad estrarre dall'annuncio: ottieni una stima più accuranta di questo immobile, inserendo dati più precisi.
N.B. L'Opinione di Caasa® è un servizio sperimentale realizzato tramite tecniche di Intelligenza Artificiale, fornito senza alcuna garanzia di correttezza e completezza. Leggi il disclaimer o segnalaci un problema.
IMMAGINI
IN SINTESI
PROPOSTO DA:
Progetto Montesilvano
DESCRIZIONE
con giardino con balcone con cantina con cucina abitabile
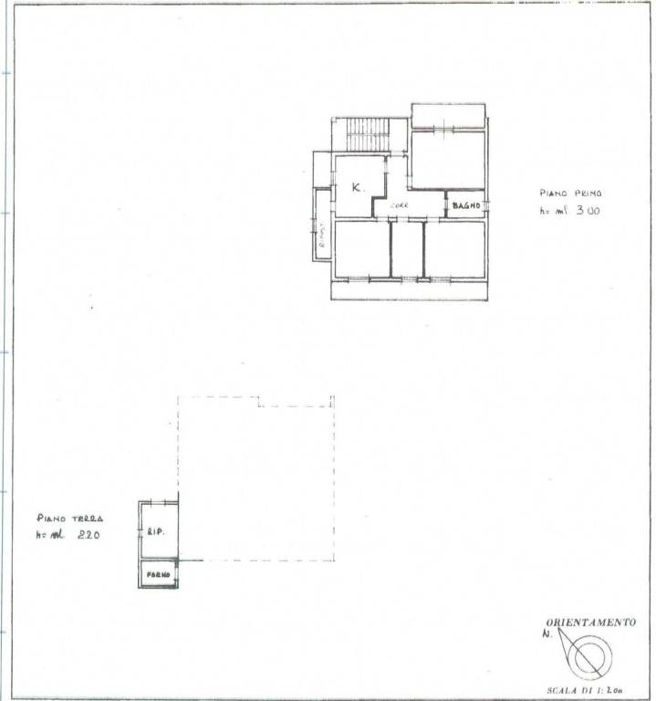
A Città Sant’Angelo, in una tranquilla zona residenziale, appartamento al primo piano di una piccola palazzina senza spese condominiali. La soluzione sviluppa 125 mq interni ed è composta da ingresso, cucina abitabile, soggiorno, due camere matrimoniali, una cameretta e un bagno con vasca. Ogni stanza ha uscita su balconi con vista panoramica. Completano la proprietà una comoda cantina al piano terra e un giardino. Se per acquistare la tua nuova casa hai bisogno di vendere il tuo attuale immobile contattaci per una consulenza con valutazione gratuita e senza impegno. Per ulteriori informazioni rivolgersi a: Affiliato TECNOCASA Progetto Montesilvano - C.so Umberto I n.584 Montesilvano (PE) Tel. 0854459904 e-mail: pehn8@tecnocasa.it


