Valutazione immobiliare indipendente, accurata e gratuita
Appartamento in vendita a L'Aquila in zona San Sisto a 99.000 € (cod.656beddc)
Caasa non ha sufficienti informazioni per commentare l'appartamento a L'Aquila in zona San Sisto - 656beddc.
Analisi immobiliare
I dati in posseso di Caasa per quest'immobile sono insufficienti, inaffidabili o contraddittori per proporre un'analisi attendibile.
Mercato immobiliare a L'Aquila
Per quanto riguarda più in generale la città di L'Aquila, sono presenti al momento oltre 500 annunci per
appartamenti in vendita (quasi il 20% dell'intera provincia)
e il maggior numero di annunci per questa tipologia sono relativi alla zona di Centro Città, mentre la zona di San Sisto risulta molto meno attiva considerando il numero di annunci presenti.
La richiesta media nella zona dove sorge l'appartamento (San Sisto) è pari a
1.685 €/m², molto vicina ai valori della zona Centro Città che sono i più alti della città .
Per quanto riguarda la dinamica dei prezzi, negli ultimi 6 mesi i prezzi medi in tutta la città per appartamenti in vendita sono
in leggera diminuzione (-2,93%).
NOVITÀ Il risultato che vedi dipende dai dati che siamo riusciti ad estrarre dall'annuncio: ottieni una stima più accuranta di questo immobile, inserendo dati più precisi.
N.B. L'Opinione di Caasa® è un servizio sperimentale realizzato tramite tecniche di Intelligenza Artificiale, fornito senza alcuna garanzia di correttezza e completezza. Leggi il disclaimer o segnalaci un problema.
IMMAGINI
IN SINTESI
PROPOSTO DA:
Realist Immobiliare C/O Galleria Commerciale 99 - Piazzale TRONY
DESCRIZIONE
di recente costruzione con balcone con termocondizionamento con giardino di recente costruzione con angolo cottura di nuova costruzione con riscaldamento autonomo senza ascensore
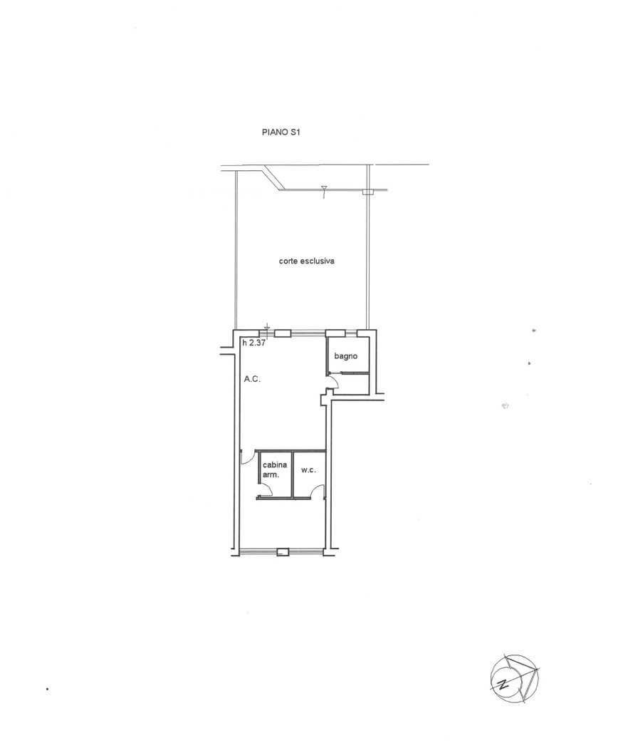
Nel quartiere di Valle Pretara, a pochi minuti dal centro della città, proponiamo un appartamento con ingresso indipendente situato al piano terra di una recente costruzione. L'ingresso si apre su un soggiorno luminoso con angolo cottura, uno spazio accogliente e ben organizzato. A servizio della zona giorno sono presenti un antibagno con attacco per la lavatrice e un bagno. Un piccolo disimpegno conduce alla zona notte, composta da una camera matrimoniale ampia e confortevole, completa di cabina armadio e bagno privato in suite, studiata per garantire il massimo comfort. L'immobile è dotato di impianto di riscaldamento a pavimento, che assicura un'elevata efficienza energetica e un piacevole benessere abitativo, oltre a impianto di allarme, pensato per garantire sicurezza e tranquillità. Completa la proprietà un'ampia corte esclusiva pavimentata, uno spazio esterno versatile e funzionale, utilizzabile anche come area parcheggio. Grazie alla recente costruzione, alle dotazioni moderne e alla funzionale distribuzione degli spazi, l'immobile si presta sia come abitazione principale sia come investimento, risultando particolarmente interessante anche per la messa a reddito




