Valutazione immobiliare indipendente, accurata e gratuita
L'Opinione di Caasa® per l'appartamento in vendita a Vasto a 248.000 € (cod.64fb3431)
Secondo Caasa, per l'appartamento in vendita a Vasto, la richiesta di 248.000 € è equilibrata rispetto agli annunci simili.
Analisi immobiliare
L'appartamento è proposto in vendita (da vastoimmobiliare) a
248.000 € per una
superficie commerciale di
100 m² e quindi ad un prezzo per metro quadrato pari a
2480 €/m²
.
Tale prezzo
è molto vicino a quello stimato da Caasa per immobili in vendita simili per tipologia, caratteristiche e classe energetica, che è compreso tra
2.342 €/m² e
2.585 €/m².
Sono stati utilizzati in raffronto i soli valori medi cittadini, visto che non è stato possibile determinare in modo affidabile la posizione dell'immobile. All'elaborazione della stima ha però contribuito anche la classe energetica (A+) oltre alla condizione dell'immobile (di nuova costruzione) e alla presenza di alcune caratteristiche significative come il posto auto o la presenza dell'ascensore. Per queste ragioni i valori considerati accettabili per l'offerta costituiscono un intervallo comunque ampio.
Mercato immobiliare a Vasto
Per quanto riguarda più in generale la città di Vasto, sono presenti al momento ben circa mille annunci per
appartamenti in vendita (quasi il 20% dell'intera provincia)
e il maggior numero di annunci per questa tipologia sono relativi alla zona di Marina.
Relativamente alla dinamica dei prezzi, possiamo dire che negli ultimi 6 mesi i prezzi medi in tutta la città per appartamenti in vendita sono
in leggero aumento (+2,92%).
NOVITÀ Il risultato che vedi dipende dai dati che siamo riusciti ad estrarre dall'annuncio: ottieni una stima più accuranta di questo immobile, inserendo dati più precisi.
N.B. L'Opinione di Caasa® è un servizio sperimentale realizzato tramite tecniche di Intelligenza Artificiale, fornito senza alcuna garanzia di correttezza e completezza. Leggi il disclaimer o segnalaci un problema.
IMMAGINI
IN SINTESI
DESCRIZIONE
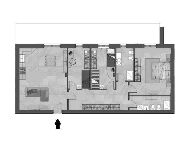
di nuova costruzione con posto auto con terrazza con balcone di nuova costruzione con termocondizionamento con angolo cottura con ascensore
Rif. R/C34-8 – Vasto (CH) – NUOVA REALIZZAZIONE. In zona molto servita ed a poca distanza dal centro città, proponiamo in vendita un ampio appartamento in corso di costruzione. L’appartamento è posto al primo piano di una piccola palazzina (con ascensore), si sviluppa per 100 mq ed è costituito da un comodo soggiorno con angolo cottura, da una camera matrimoniale, da due camerette, da due bagni e da un balcone di 30 mq. Nella richiesta è compreso un box auto ed un posto auto esclusivo recintato. Possibilità di personalizzazione. La palazzina di cui fa parte l’immobile è tecnologicamente avanzata, rifinita e curata in ogni suo dettaglio. Riscaldamento e raffrescamento a pompa di calore. per un notevole risparmio energetico. Consegna prevista Dicembre 2027

