Valutazione immobiliare indipendente, accurata e gratuita
L'Opinione di Caasa® per l'appartamento in vendita ad Ortona a 105.000 € (cod.65521321)
Secondo Caasa, per l'appartamento in vendita ad Ortona, la richiesta di 105.000 € è leggermente vantaggiosa rispetto agli annunci simili.
Analisi immobiliare
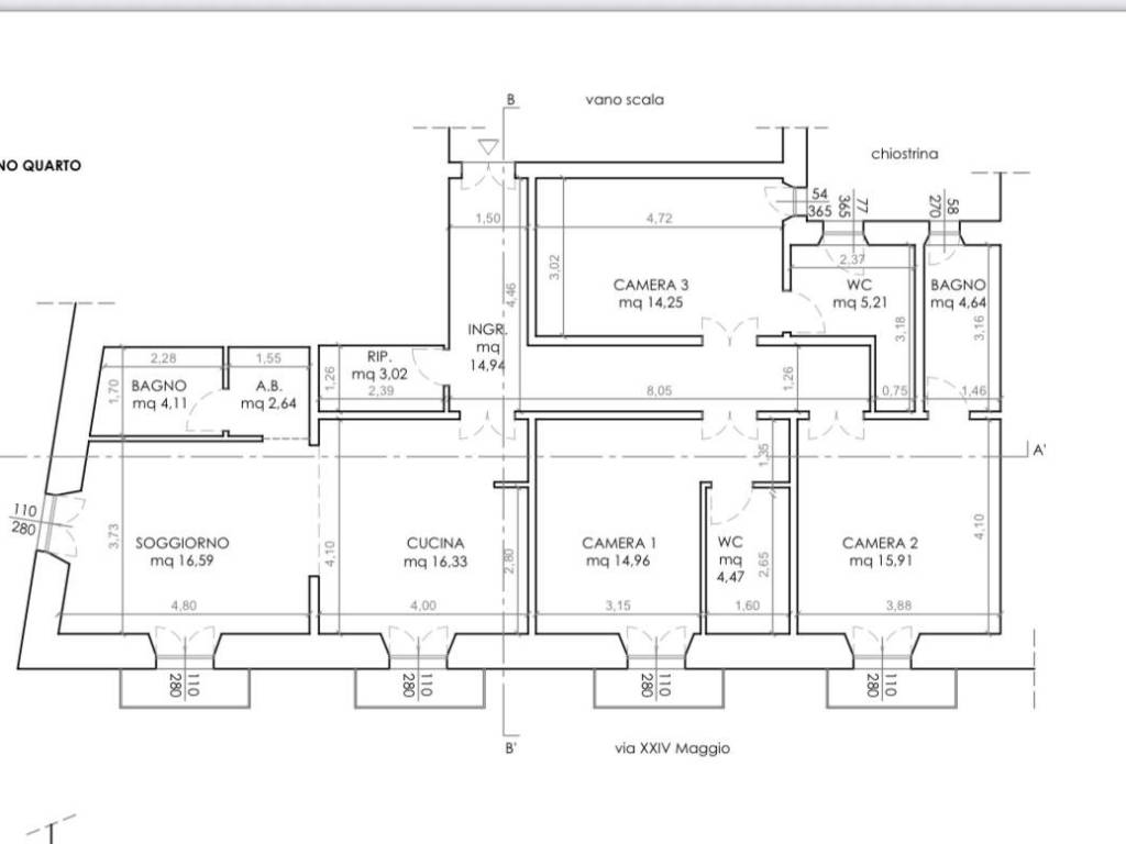
L'appartamento, situato vicino a Via Pantaleone Rapino nella zona OMI C2, è proposto in vendita (da Immobiliare Capista di Vadini Simone) a
105.000 € per una
superficie commerciale di
130 m² e quindi ad un prezzo per metro quadrato pari a
807 €/m²
.
Tale prezzo
è leggeremente più conveniente di quello stimato da Caasa per immobili in vendita simili per tipologia e caratteristiche e localizzati nella stessa zona OMI, che è compreso tra
871 €/m² e
995 €/m².
Grazie alla conoscenza con buona approssimazione della localizzazione dell'immobile, è stato possibile utilizzare come raffronto i dati medi elaborati esattamente nella zona OMI di appertenenza (ESPANSIONE). Anche se Caasa non è riuscita a determinare la classe energetica, ad affinare la stima ha contribuito anche lo stato dell'immobile (da ristrutturare). In virtù di queste considerazioni i valori accettabili per l'offerta costituiscono un intervallo relativamente limitato.
Mercato immobiliare ad Ortona
Per quanto riguarda più in generale la città di Ortona, sono presenti al momento più di 300 annunci per
appartamenti in vendita (meno del 10% dell'intera provincia)
e il maggior numero di annunci per questa tipologia sono relativi alla zona di Caldari.
Relativamente alla dinamica dei prezzi, possiamo dire che negli ultimi 6 mesi i prezzi medi in tutta la città per appartamenti in vendita sono
sostanzialmente stabili (+0,73%).
NOVITÀ Il risultato che vedi dipende dai dati che siamo riusciti ad estrarre dall'annuncio: ottieni una stima più accuranta di questo immobile, inserendo dati più precisi.
N.B. L'Opinione di Caasa® è un servizio sperimentale realizzato tramite tecniche di Intelligenza Artificiale, fornito senza alcuna garanzia di correttezza e completezza. Leggi il disclaimer o segnalaci un problema.
IMMAGINI
IN SINTESI
PROPOSTO DA:
Immobiliare Capista di Vadini Simone
Corso Vittorio Emanuele II n. 101, Corso Vittorio Emanuele II n. 101, 66026, Ortona (CH)
DESCRIZIONE
da ristrutturare da ristrutturare per vacanza senza ascensore
Vendita Appartamento Luminoso di 130 mq nel Centro Storico di Ortona – Palazzo Bernabeo Ad Ortona, in via P. Rapino, all’interno del prestigioso e storico Palazzo Bernabeo, proponiamo in vendita un ampio appartamento di oltre 130 mq, situato al quart […]
