Valutazione immobiliare indipendente, accurata e gratuita
Loft in vendita ad Ari a 280.000 € (cod.655bc91c)
Caasa non ha sufficienti informazioni per commentare il loft in vendita ad Ari - 655bc91c.
Analisi immobiliare
I dati in posseso di Caasa per quest'immobile sono insufficienti, inaffidabili o contraddittori per proporre un'analisi attendibile.
Mercato immobiliare ad Ari
Per quanto riguarda più in generale il comune di Ari, sono presenti al momento meno di dieci annunci per
loft in vendita (meno del 5% dell'intera provincia) .
Vedi altre informazioni direttamente su
Mercato-Immobiliare.info
NOVITÀ Il risultato che vedi dipende dai dati che siamo riusciti ad estrarre dall'annuncio: ottieni una stima più accuranta di questo immobile, inserendo dati più precisi.
N.B. L'Opinione di Caasa® è un servizio sperimentale realizzato tramite tecniche di Intelligenza Artificiale, fornito senza alcuna garanzia di correttezza e completezza. Leggi il disclaimer o segnalaci un problema.
IMMAGINI
IN SINTESI
DESCRIZIONE
con angolo cottura senza ascensore
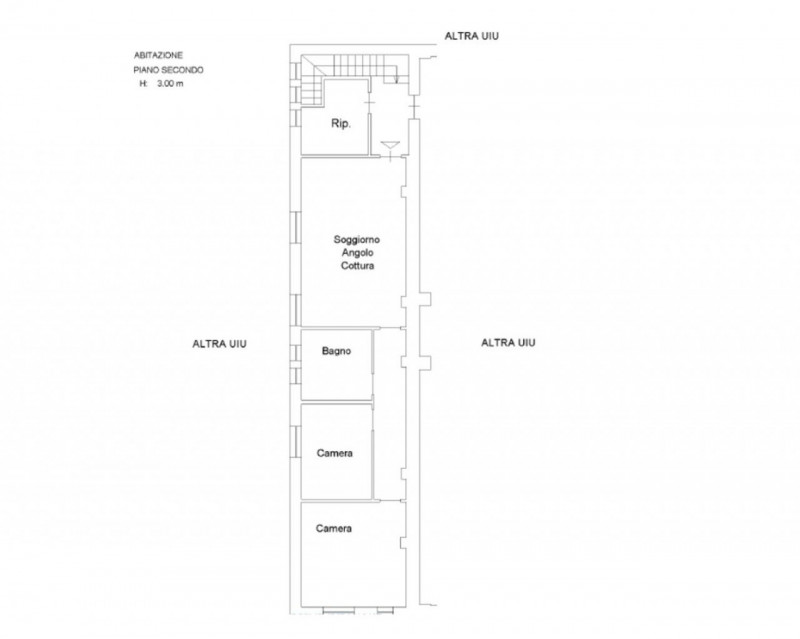
Nel Comune di Ari, in Via Foro snc, proponiamo in vendita un complesso immobiliare a destinazione artigianale, situato nella zona produttiva della cittadina. La proprietà è accessibile da strada privata e dispone di ingresso indipendente. Il compendio è composto da più corpi di fabbrica collegati, sviluppati su più livelli. Al piano terra si trovano i magazzini e la zona lavorazioni, oltre ad aree dedicate a spogliatoi, reception e uffici. I piani superiori ospitano ulteriori uffici e spazi open space con altezza di circa 4 metri, mentre al secondo piano è presente anche una piccola abitazione composta da zona giorno con angolo cottura, due camere e bagno. Completano la proprietà un'area esterna di pertinenza recintata. Gli edifici sono stati realizzati con struttura in cemento armato e presentano finiture diversificate: pavimenti in travertino negli uffici, ceramica nei servizi e cemento industriale nelle zone produttive. Offre ampi spazi versatili adatti a diversi utilizzi artigianali, industriali e direzionali. Soluzione ideale per operatori interessati ad un progetto di recupero e valorizzazione in una zona produttiva ben collegata. Superficie sviluppata: 2.270 mq Superficie area pertinenziale: 5.280 mq





