Valutazione immobiliare indipendente, accurata e gratuita
L'Opinione di Caasa® per la casa indipendente in vendita a Caprino Veronese a 580.000 € (cod.65054ff4)
Secondo Caasa, per la casa indipendente in vendita a Caprino Veronese, la richiesta di 580.000 € è significativamente svantaggiosa rispetto agli annunci simili.
Analisi immobiliare
La casa indipendente, situata nella zona OMI B1, è proposta in vendita a
580.000 € per una
superficie commerciale di
147 m² e quindi ad un prezzo per metro quadrato pari a
3945 €/m²
.
Questo valore
è significativamente più alto di quello stimato da Caasa per immobili in vendita simili per tipologia, caratteristiche, classe energetica e localizzati nella stessa zona OMI, che è compreso tra
3.088 €/m² e
3.376 €/m².
La conoscenza con buona approssimazione della localizzazione dell'immobile ha consentito di utilizzare come raffronto i dati medi elaborati esattamente nella zona OMI di appertenenza (PARTE SUD DEL TERR.COMU.COMP.IL CAPOLUOGO, LE FRAZ. DI PESINA, CEREDELLO, S.M...). Inoltre, Caasa ha potuto affinare la stima anche con la conoscenza della classe energetica (A+) oltre che di alcune caratteristiche significative come il garage o la disponibilità di una cantina. Per queste considerazioni è possibile considerare un intervallo di valori accettabili per l'offerta abbastanza limitato.
Mercato immobiliare a Caprino Veronese
Per quanto riguarda più in generale il comune di Caprino Veronese, sono presenti al momento più di cento annunci per
case indipendenti in vendita (meno del 5% dell'intera provincia)
e il maggior numero di annunci per questa tipologia sono relativi alla zona di Pesina.
Per quanto riguarda la dinamica dei prezzi, negli ultimi 6 mesi i prezzi medi in tutto il comune per case indipendenti in vendita sono
in forte aumento (+10,60%).
NOVITÀ Il risultato che vedi dipende dai dati che siamo riusciti ad estrarre dall'annuncio: ottieni una stima più accuranta di questo immobile, inserendo dati più precisi.
N.B. L'Opinione di Caasa® è un servizio sperimentale realizzato tramite tecniche di Intelligenza Artificiale, fornito senza alcuna garanzia di correttezza e completezza. Leggi il disclaimer o segnalaci un problema.
IMMAGINI
IN SINTESI
PROPOSTO DA:
L'Arte di Abitare
DESCRIZIONE
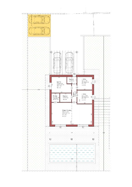
con giardino con posto auto con cantina con garage con termocondizionamento
In una zona tranquilla e leggermente defilata rispetto al centro di Caprino Veronese, ma comunque comoda a tutti i principali servizi, sta sorgendo un nuovo e raffinato progetto residenziale composto da sole tre ville singole, ognuna pensata per offrire comfort, indipendenza e un'elevata qualità abitativa. Tutte le ville godono della possibilità di realizzare una piscina privata, ideale per valorizzare al massimo gli spazi esterni. La villa proposta è disposta interamente su un unico piano, una caratteristica sempre più ricercata per la sua comodità. Gli spazi interni sono ben distribuiti e si aprono su una luminosa zona giorno con cucina a vista, perfetta per accogliere la vita quotidiana e i momenti conviviali. La zona notte ospita tre camere da letto, di cui una matrimoniale e due doppie, oltre a due bagni finestrati e un pratico ripostiglio. Esternamente, la villa è circondata da un giardino privato su tre lati, offrendo ampio spazio per godere della vita all'aria aperta. Un grande porticato, direttamente collegato alla zona giorno, si affaccia su una terrazza che diventa la naturale estensione dell'abitazione, ideale per pranzi e cene all'aperto. Sono presenti inoltre due posti auto coperti, comodi e riservati. L'abitazione sarà realizzata con materiali di alta qualità e con una particolare attenzione al risparmio energetico. Il riscaldamento a pavimento assicura un calore omogeneo in tutti gli ambienti, mentre una pompa di calore ad alta efficienza permetterà di gestire sia il riscaldamento che il raffrescamento in modo sostenibile. L'impianto fotovoltaico da 6 kW garantirà una produzione autonoma di energia, riducendo sensibilmente i costi in bolletta. Gli infissi in PVC con triplo vetro offriranno un eccellente isolamento termico e acustico, mentre le tapparelle elettriche e le zanzariere a scomparsa miglioreranno ulteriormente la vivibilità quotidiana. Questa villa rappresenta una soluzione ideale per chi desidera una casa indipendente, moderna e altamente efficiente dal punto di vista energetico[…]


